Prodej bytu 3+kk, Brno, Na kopcích, 94 m2

Na Kopcích, Brno


14 900 000 Kč /za nemovitost
HYPOTÉKA od 66 594 Kč /měs.
Regionální dodavatelé v Brně

Popis

Uzavřeném rezidenční komplex "Na Kopcích“. Místo, které spojuje nádherné výhledy a výjimečný klid.

V rámci tohoto komorního komplexu, jenž zahrnuje bytový dům i rodinné domy, nabízíme prodej bytu 3+kk o výměře 94m², který v sobě kombinuje moderní technologie, promyšlené dispoziční řešení a cit pro detail.

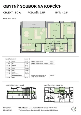
Byt se nachází ve 2. NP a je doplněn o lodžii o výměře 9 m².Vše dohromady tvoří nadstandardní obytný prostor ideální pro ty, kdo chtějí bydlet ve městě, ale bez kompromisů.

Dispozičně je byt rozdělen na vstupní předsíň, samostatné WC, koupelnu, dvě ložnice a hlavní obytný prostor s kuchyňským koutem a přímým vstupem na terasu a do zahrady. Nechybí zde ani praktická šatna a chodba zajišťující pohodlný pohyb po bytě.

Byt zaujme na první pohled použitými materiály a vybavením, které odpovídá vysokému standardu: bezfalcové interiérové dveře s magnetickým zámkem, velkoformátové obklady v koupelnách, toalety AquaClean ve standardu projektu včetně zřizovacích předmětů koupelen Hansgrohe, klimatizace, rekuperace, podlahové vytápění, hliníková okna s izolačním trojsklem a mnoho dalšího.

Projekt Na Kopcích Brno vznikl s cílem nabídnout obyvatelům nejen vysoký standard, ale i dlouhodobou hodnotu. Celý areál tvoří uzavřený komplex s omezeným přístupem, což zaručuje soukromí, bezpečí a klidné bydlení v sousedství podobně smýšlejících lidí.

Cena
14 900 000 Kč /za nemovitost Spočítat hypotéku
Aktualizováno
10. 7. 2025
Adresa
Na Kopcích, Brno
ID
1.2.2., 1.2.5.
Stavba
Skeletová
Stav objektu
Ve výstavbě
Patro
2. z 3
Vybaveno
Částečně
Lokalita objektu
Klidná část obce
Vlastnictví
Osobní
Užitná plocha
94 m2
Třída energetické náročnosti
B - Velmi úsporná
Sklep
Lodžie
Výtah
Bezbarierový přístup
Parkování

Máte zájem o tuto nemovitost?

Tímto, v souladu s nařízením Evropského parlamentu a Rady (EU) 2016/679, v platném znění, prohlašuji, že mi je alespoň 16 let a uděluji tak svůj souhlas se zpracováním zadaných údajů (jméno, telefon, e-mail, ip adresa) společnosti B3 Technology, s.r.o., IČ: 07330600, se sídlem Novostavby 126/23, 435 11 Lom (správce dat), za účelem předání dotazu z tohoto formuláře Vámi vybranému inzerentovi a zpětného kontaktování mé osoby. Osobní údaje bude správce zpracovávat manuálně i automaticky přímo prostřednictvím svých zaměstnanců. Informace předané tímto formulářem budou uloženy v databázi správce maximálně po dobu 10 let. Odvolání souhlasu s uložením a zpracováním poskytnutých dat lze e-mailem na info@realitymat.cz. V případě podezření na neoprávněné použití Vámi poskytnutých údajů máte právo předat podnět k šetření Úřadu pro ochranu osobních údajů. Více informací
Chystáte se prodat nemovitost?
Pomůžeme Vám!

Kontakt

Ing. Jiří Oulehla Ph.D., MBA

Ing. Jiří Oulehla Ph.D., MBA

Přihlášení k odběru

Nenechte si ujít nejnovější nabídky prodeje bytů 3+kk v Brně.

Podobné nabídky