Pronájem kanceláře, Praha - Lhotka, Na dlouhé mezi, 436 m2 (ID: 1875680)
Na dlouhé mezi, Praha 4, Lhotka
(+ služby, 2x kauce a provize RK)
Popis
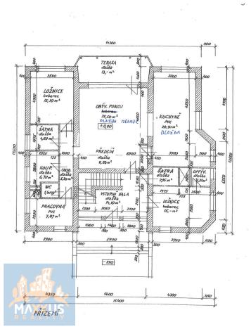
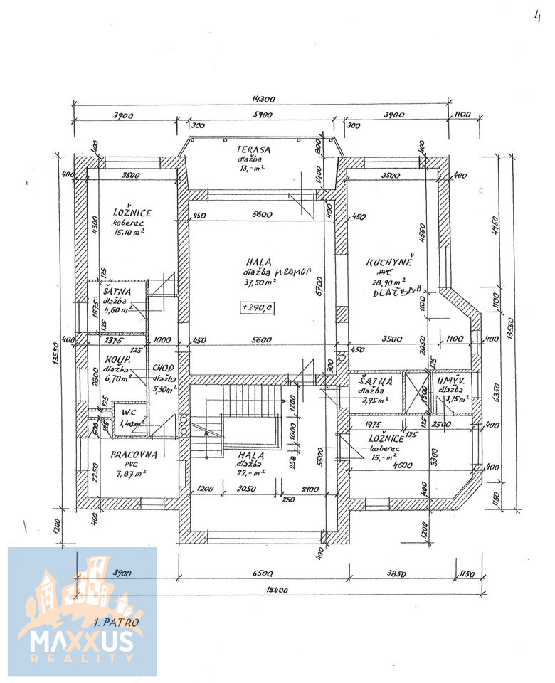
Pronájem nadčasové dvougenerační vily o dispozici 11+2 se zahradní terasou a garáží. Vila se nachází v oblíbené a vyhledávané lokalitě Prahy 4 – Lhotka. Vila se zastavěnou plochou 236 m2 leží na pozemku s rozlohou 1044 m2. Na pozemku zahradou se vzrostlou a udržovanou vegetací. V blízkosti příroda a skvělá dopravní dostupnost - tram, bus, v okolí také mezinárodní škola. Dům o velkorysé užitné ploše 436 m2 se rozkládá ve třech podlaží. V suterénu domu se nachází hala se schodištěm, ze kterého se vchází do kotelny/prádelny, garáže, sklepu a obytné části. Z obytné části je vstup do vybavené kuchyně a ložnice s vlastní šatnou a koupelnou. K obývací místnosti náleží zahradní terasa 13 m2 ze které je dále vstup do zahrady. V přízemí domu se nachází vstupní schodišťová hala (komunikační uzel) s předsíní a prostorným obývacím pokojem vybaveným krbem na dřevo. Z obývacího pokoje dále vstup do ložnice se šatnou, koupelnou, samostatnou toaletou a pracovnou. Dále je zde spotřebiči vybavená kuchyně o rozloze 28,9 m2. V přízemí domu je samostatný vchod ze vstupní haly do hostinského pokoj s vlastní šatnou i koupelnou. Patro domu je dispozičně řešeno stejně jako přízemí. V podkroví se nachází ateliér vhodný pro pracovnu a úložné prostory. Parkování je možné v garáži či na pozemku. Energie se převádí na nájemce (měsíční odhad za celý dům okolo 12.000,- Kč/měsíc). Dům je volný k nastěhování ihned. Plánky domu jsou na konci galerie. PENB nebyl dodán, a tudíž třída energetické náročnosti je dle vyhlášky 148/2000 Sb. uvedena jako G. Makléř doporučuje prohlídku.
Máte zájem o tuto nemovitost?
 
                                Ječná 529/29, Praha, Nové Město
Pomůžeme Vám!
Pomůžeme Vám!
Kontakt
 
                        Karel Štaubert
Přihlášení k odběru
Nenechte si ujít nejnovější nabídky pronájmu kanceláří v Praze 4.
 
                                                                                     
                                                                                     
                                                                                     
                                                                                     
                                                                                     
                                                                                     
                                                                                     
                                                                                     
                                                                                     
                                                                                     
                                                                                     
                                                                                     
                                                                                     
                                                                                     
                                                                                     
                                                                                     
                                                                                     
                                                                                     
                                                                                     
                                                                                     
                                                                                     
                                                                                     
                                                                                     
                                                                                     
                                                                                     
                                                                                     
                                                                                     
                                                                                     
                                                                                     
                                                                                     
                                                                                     
                                                                                     
                                                                                     
                                                                                     
                                                                                     
                                                                                     
                                                                                     
                                                                                     
                                                                                     
                                                                                     
                                                                                     
                                                                                     
                                                                                     
                                                                                     
                                                                                     
                                                                                     
                                                                                     
                                                                                     
                                                                                     
                                                                                     
                                                                                     
                                                                                     
                                             
         
         
        