Prodej kanceláře, České Budějovice, Školní, 1260 m2

Školní, České Budějovice


Cena na vyžádání /za nemovitost
Získejte výhodnou HYPOTÉKU

(cena u makléře)


Regionální dodavatelé v Českých Budějovicích

Výkup a prodej starého nábytku

Pojištění a finance

Popis

REALDOMUS Vám ve výhradním zastoupení majitele zprostředkuje prodej administrativně obchodní budovy v obchodní zóně v ulici Školní v Českých Budějovicích.

Budova je kompletně zrekonstruována a připravena pro zájemce, který si pouze vybere finální úpravu povrchů užitných ploch, jenž budou provedeny na míru dle jeho potřeb a požadavků.

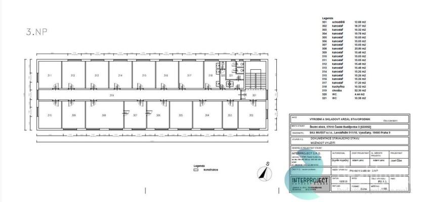
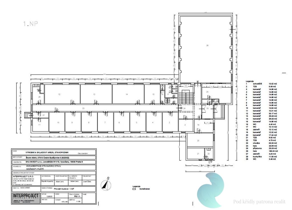
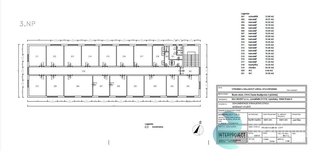
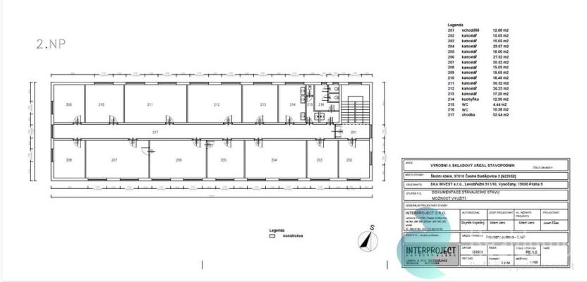
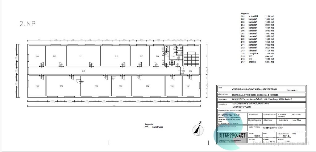
Předmět prodeje je kompletní tří podlažní administrativní budova, která se z 37 kanceláří, archivu, sociálního zázemí a obchodní prostory o výměře 169 m2.

Zájmové budova se nachází v uzavřeném areálu, který je přístupný (24/7) elektronicky ovládanou vjezdovou bránou.

Součástí předmětu prodeje je pozemek před budovou a také ve vnitrobloku o celkové výměře cca. 1.850 m2, které nabízí parkovací kapacity pro osobní i nákladní vozový park.

Bližší technické informace a podmínky transakce Vám poskytne REALDOMUS.

Cena
Cena na vyžádání Spočítat hypotéku
Poznámka k ceně
cena u makléře
Aktualizováno
17. 4. 2026
Adresa
Školní, České Budějovice
ID
2256
Stavba
Cihlová
Stav objektu
Velmi dobrý
Patro
1. z 3
Vybaveno
Ne
Typ objektu
Patrový
Lokalita objektu
Klidná část obce
Užitná plocha
1260 m2
Zastavěná plocha
610 m2
Podlahová plocha
1260 m2
Plocha zahrady
1000 m2
Třída energetické náročnosti
G - Mimořádně nehospodárná
Elektřina
400V
Plyn
Plynovod
Odpad
Veřejná kanalizace
Komunikace
Asfaltová
Telekomunikace
Internet
Voda
Vodovod
Převod do OV
Parkování

Máte zájem o tuto nemovitost?

Tímto, v souladu s nařízením Evropského parlamentu a Rady (EU) 2016/679, v platném znění, prohlašuji, že mi je alespoň 16 let a uděluji tak svůj souhlas se zpracováním zadaných údajů (jméno, telefon, e-mail, ip adresa) společnosti B3 Technology, s.r.o., IČ: 07330600, se sídlem Novostavby 126/23, 435 11 Lom (správce dat), za účelem předání dotazu z tohoto formuláře Vámi vybranému inzerentovi a zpětného kontaktování mé osoby. Osobní údaje bude správce zpracovávat manuálně i automaticky přímo prostřednictvím svých zaměstnanců. Informace předané tímto formulářem budou uloženy v databázi správce maximálně po dobu 10 let. Odvolání souhlasu s uložením a zpracováním poskytnutých dat lze e-mailem na info@realitymat.cz. V případě podezření na neoprávněné použití Vámi poskytnutých údajů máte právo předat podnět k šetření Úřadu pro ochranu osobních údajů. Více informací
Chystáte se prodat nemovitost?
Pomůžeme Vám!
Theleadway banner

Kontakt

Mgr. Petr Wölfl

Mgr. Petr Wölfl

Přihlášení k odběru

Nenechte si ujít nejnovější nabídky prodeje kanceláří v Českých Budějovicích.

Podobné nabídky