Prodej bytu 3+kk, Živogošće, Chorvatsko, 57 m2

Živogošće


352 000 € /za nemovitost

(8.7.25 cena nav. z 335 000 na 352 000)


Regionální dodavatelé

Popis

Dovolujeme si Vám nabídnout na prodej moderní a útulný apartmán s prostornou terasou v malebném dalmatském letovisku Živogošće ležící na slunném pobřeží Makarské riviéry ve Splitské oblasti v Chorvatsku. Apartmán se nachází v čtyřpodlažní moderní apartmánové budově A s výtahem ve výstavbě s celkem 12 apartmány, jejíž dokončení je plánováno na počátek roku 2027.

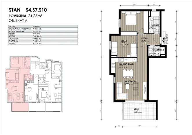
Nabízený apartmán S7 o rozloze 81,85 m2 je situovaný ve 2. patře a sestává z chodby, 2 x koupelen, 2 x ložnice, obývacího pokoje s kuchyní a jídelnou s přístupem na prostornou lodžii o velikosti 11,60 m2. K apartmánu náleží 1 garážové stání v suterénu budovy.

Apartmán bude vybavený klimatizací v obytných místnostech , roletami na oknech, moderní keramikou, bezpečnostními dveřmi a na přání klienta je možné za příplatek instalovat podlahové vytápění a elektrické žaluzie. Budova bude napojena na vodovodní i kanalizační řád. Vzdálenost k moři a pláži je cca 200 m.
Architektura budovy se vyznačuje moderním a funkčním designem s důrazem na komfort a soukromí obyvatel.

Živogošće Blato je malebné dalmatské letovisko ležící na slunném pobřeží Makarské riviéry, přibližně 23 km jižně od města Makarska, přímo pod majestátními vrcholy pohoří Biokovo. Tato klidná destinace se pyšní nádhernými oblázkovými plážemi s pozvolným stupem do azurově čistého moře a autentickou středomořskou atmosférou, která láká návštěvníky hledající relaxaci i aktivní dovolenou.

Letovisko Živogošće je ideální lokalitou pro investici do moderních apartmánů, které zde na podzim letošního roku začne stavět chorvatská stavební firma s českou účastí. Nabízí dokonalou kombinaci klidu, krásné přírody a komfortu, což z něj činí výjimečné místo pro bydlení i rekreační pobyty.
Objevte kouzlo Živogošće Blato a zažijte pravý středomořský ráj!


Cena
352 000 € /za nemovitost
Poznámka k ceně
8.7.25 cena nav. z 335 000 na 352 000
Aktualizováno
8. 7. 2025
Adresa
Živogošće
ID
CHŽ-A-S7
Stavba
Smíšená
Stav objektu
Projekt
Patro
3. z 4
Vybaveno
Ne
Vlastnictví
Osobní
Užitná plocha
57 m2
Podlahová plocha
57 m2
Třída energetické náročnosti
G - Mimořádně nehospodárná
Elektřina
230V
Odpad
Veřejná kanalizace
Voda
Vodovod
Lodžie
Výtah
Parkování

Máte zájem o tuto nemovitost?

Tímto, v souladu s nařízením Evropského parlamentu a Rady (EU) 2016/679, v platném znění, prohlašuji, že mi je alespoň 16 let a uděluji tak svůj souhlas se zpracováním zadaných údajů (jméno, telefon, e-mail, ip adresa) společnosti B3 Technology, s.r.o., IČ: 07330600, se sídlem Novostavby 126/23, 435 11 Lom (správce dat), za účelem předání dotazu z tohoto formuláře Vámi vybranému inzerentovi a zpětného kontaktování mé osoby. Osobní údaje bude správce zpracovávat manuálně i automaticky přímo prostřednictvím svých zaměstnanců. Informace předané tímto formulářem budou uloženy v databázi správce maximálně po dobu 10 let. Odvolání souhlasu s uložením a zpracováním poskytnutých dat lze e-mailem na info@realitymat.cz. V případě podezření na neoprávněné použití Vámi poskytnutých údajů máte právo předat podnět k šetření Úřadu pro ochranu osobních údajů. Více informací
Chystáte se prodat nemovitost?
Pomůžeme Vám!

Kontakt

Violeta Borisova

Violeta Borisova

Přihlášení k odběru

Nenechte si ujít nejnovější nabídky prodeje bytů 3+kk.

Podobné nabídky