Prodej kanceláře, Pardubice, Školská, 157 m2

Školská, Pardubice, Ohrazenice


Cena na vyžádání /za nemovitost
Získejte výhodnou HYPOTÉKU

(info v RK)


Regionální dodavatelé v Pardubicích

Popis

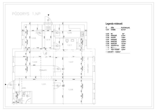
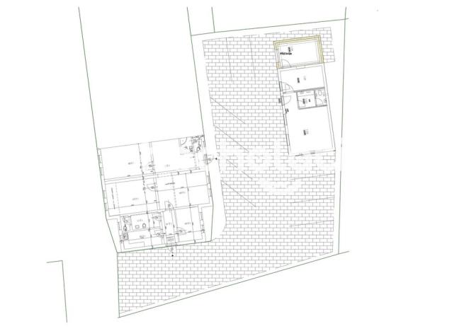
Exkluzivně nabízíme kancelářské prostory se skvělým investičním potenciálem, o celkové výměře 157 m2, s vlastním pozemkem (450 m2), parkováním (10 míst) a možností úpravy na ateliéry, v žádané lokalitě Pardubice - Ohrazenice.

Kanceláře jsou rozděleny do dvou objektů.

První část je umístěna v přízemí bytového domu (celková výměra 103 m2) a nabízí možnost případné úpravy pro účely bydlení. V současné době je prostor rozdělený na 3 kanceláře, chodbu, kuchyň, halu a sociální zařízení.

Druhá část je v samostatné budově a nabízí kancelářské prostory o výměře 54 m2 (3 kanceláře, kuchyňka, WC).

K dispozici je velký, dlážděný pozemek, který lze využívat na parkování vozidel. Kapacita parkoviště je cca 10 aut.

Celý areál je za vjezdovou bránou a má do něj přístup pouze majitel.

Unikátní nemovitost s velkým investičním potenciálem.

Cenovou nabídku předložíme na základě prohlídky a dle záměru potencionálního kupce.

Cena
Cena na vyžádání Spočítat hypotéku
Poznámka k ceně
info v RK
Aktualizováno
16. 12. 2025
Adresa
Školská, Pardubice, Ohrazenice
ID
00159
Stavba
Smíšená
Stav objektu
Velmi dobrý
Patro
1.
Vybaveno
Ne
Užitná plocha
157 m2
Třída energetické náročnosti
C - Úsporná
Ukazatel energetické náročnosti
115 kWh/m2 za rok
Elektřina
230V
Odpad
Veřejná kanalizace
Komunikace
Dlážděná, Asfaltová
Telekomunikace
Internet
Doprava
Vlak, Dálnice, Silnice, MHD, Autobus
Voda
Vodovod
Topné těleso
Radiátory
Zdroj topení
Centrální dálkové
Zdroj teplé vody
Centrální dálkový ohřev
Parkování

Máte zájem o tuto nemovitost?

Tímto, v souladu s nařízením Evropského parlamentu a Rady (EU) 2016/679, v platném znění, prohlašuji, že mi je alespoň 16 let a uděluji tak svůj souhlas se zpracováním zadaných údajů (jméno, telefon, e-mail, ip adresa) společnosti B3 Technology, s.r.o., IČ: 07330600, se sídlem Novostavby 126/23, 435 11 Lom (správce dat), za účelem předání dotazu z tohoto formuláře Vámi vybranému inzerentovi a zpětného kontaktování mé osoby. Osobní údaje bude správce zpracovávat manuálně i automaticky přímo prostřednictvím svých zaměstnanců. Informace předané tímto formulářem budou uloženy v databázi správce maximálně po dobu 10 let. Odvolání souhlasu s uložením a zpracováním poskytnutých dat lze e-mailem na info@realitymat.cz. V případě podezření na neoprávněné použití Vámi poskytnutých údajů máte právo předat podnět k šetření Úřadu pro ochranu osobních údajů. Více informací
Chystáte se prodat nemovitost?
Pomůžeme Vám!

Kontakt

Julie Chocholatá

Julie Chocholatá

Přihlášení k odběru

Nenechte si ujít nejnovější nabídky prodeje kanceláří v Pardubicích.

Podobné nabídky