Prodej bytu 4+kk, Praha - Michle, Sedlčanská, 115 m2
Sedlčanská, Praha, Michle
Popis
Evidenční číslo / ID zakázky: VS243
Byt, který nabízí příjemné ranní světlo díky východní orientaci lodžií a výhled, který si budete chtít užívat každý den.
Střešní terasa s výhledem na město je skutečnou perlou tohoto bytu – z této výšky v 11. nadzemním podlaží se otevírá vzácný panorama výhled na celou Prahu. Toto výjimečné místo vytváří jedinečnou atmosféru a výrazně zvyšuje atraktivitu pobytu.
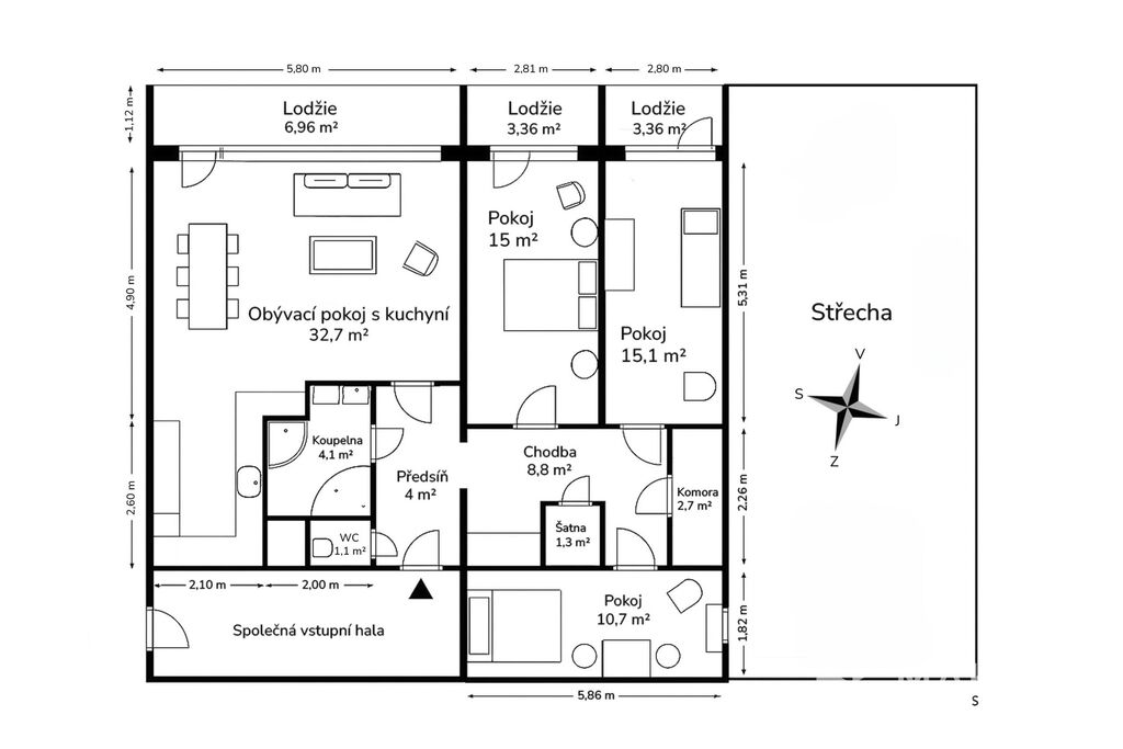
Prostorný a stylově zrekonstruovaný byt 4+kk s úchvatným výhledem na město. Tento nadstandardní byt v revitalizovaném domě přímo u stanice metra Kačerov (linka C) nabízí výbornou dostupnost do centra i na pražský okruh, tři lodžie, praktickou sklepní kóji a možnost parkování přímo pod domem.
Byt o celkové ploše 115,38 m2 (podlahová 101,7 m2 + lodžie 6,96 m2, 3,36 m2 a 3,36 m2, nezapočítávají se sklep 1 m2 a zádveří 4,30 m2) prošel kompletní a velmi vkusnou rekonstrukcí, která klade důraz na kvalitu i estetiku. Interiér se pyšní prostorným obývacím pokojem s kuchyňským koutem, odkud je vstup na prostornou první lodžii o výměře 6,96 m2. Dvě ze tří neprůchozích ložnic mají rovněž lodžii o výměře 3,36 m2 a orientaci na východ, takže je byt plný ranního slunce. Zbývající ložnice je vybavena francouzským oknem s přístupem na střešní terasu – ideální pro ty, kdo si chtějí užít soukromí a výhled na město. Díky francouzskému oknu je ložnice příjemně prosvětlená a vytváří útulnou atmosféru, zatímco výhled na okolní město dodává interiéru vzdušnost a zajímavou perspektivu. Elegantní koupelna se sprchovým koutem, toaletou a praktickými úložnými prostory s designovým LED podsvícením je skutečnou ozdobou tohoto bytu. V bytě se nachází i samostatné WC.
Přímo před domem se nachází prostorné parkoviště, což je další výhodou této nabídky. Součástí domu je zázemí se sklepy a revitalizované společné prostory, vše podpořeno kvalitní správou SVJ. Dům prošel rozsáhlou rekonstrukcí včetně výtahů, střechy, fasády, elektroinstalace i optických sítí.
Tato žádaná čtvrť nabízí kompletní občanskou vybavenost v bezprostřední blízkosti – restaurace, supermarkety, kavárny i sportovní centra. Nákupní centra Arkády Pankrác a DBK Budějovická jsou vzdálena jen pár minut metrem. Četné autobusové linky, vlaková stanice i výjezd na dálniaci D1 zajišťují bezproblémové dopravní spojení do centra i mimo Prahu. Kunratický les leží jen několik minut autem pro příjemné procházky v přírodě.
Pokud toužíte po výjimečném bydlení na výšinách, a přesto v těsné blízkosti metra, je tento nově a velmi zdařile zrekonstruovaný byt připraven k prohlídce. Přijďte se sami přesvědčit o jeho kvalitách — rádi vám ukážeme každý detail osobně.
Energetická třída PENB C — úsporná.
Pro více informací a sjednání prohlídky kontaktujte prosím realitního makléře.
Máte zájem o tuto nemovitost?

Vinohradská 2133/138, Praha
Pomůžeme Vám!
Pomůžeme Vám!
Kontakt

Makers Reality
Přihlášení k odběru
Nenechte si ujít nejnovější nabídky prodeje bytů 4+kk v Praze 4.
Tipy Realitymatu

Prodej bytu 3+1, Praha, Vokrojova, 76 m2
7 700 000 Kč

Prodej bytu 3+1, Praha, K lukám, 68 m2
8 150 000 Kč
Podobné nabídky

Prodej bytu 4+kk, Praha - Braník, Školní, 97 m2
11 850 000 Kč

Prodej bytu 4+kk, Praha - Michle, Hodonínská, 128 m2
18 390 000 Kč

Prodej bytu 4+kk, Praha, Stříbrského, 85 m2
10 950 000 Kč

Prodej bytu 4+kk, Praha - Chodov, Jažlovická, 69 m2
8 300 000 Kč