Prodej bytu 3+kk, Vracov, 65 m2 (ID: 1857986)

Vracov


4 725 000 Kč /za nemovitost
HYPOTÉKA od 21 118 Kč /měs.
Regionální dodavatelé v Vracově

Popis

Nabízíme Vám novou nemovitost na prodej.
Jedná se výstavbu přízemních bytové jednotky na klíč.
Byt se nachází ve Vracově, leží v rovinaté krajině mezi Strážnicí a Kyjovem v okrese Hodonín v Jihomoravském kraji, ležící osm kilometrů jihovýchodně od Kyjova, ve vinařské oblasti Slovácka.
Tento byt vystavený z materiálů cihel a ytongu, mají dispozici 3+kk a celkovou plochu 65 m2. K nemovitosti se vyřizuje i pozemek vhodný k výstavbě pergoly či posezení.
Jelikož se jedná o bytový dům tak bude nový majitel vlastnit podíl na budově samotné.
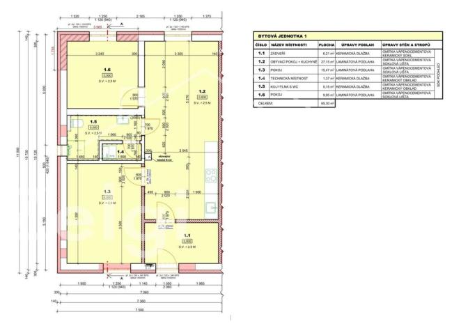
Rozložení a dispozice nemovitosti jsou popsány ve vizualizacích a půdorysech:
Byt sestává ze vstupní chodby, ze které je vstup do obývacího pokoje s kuchyňským koutem, koupelny se sprchovým koutem a wc, technické místnosti a 2 prostorných pokojů situovaných jako ložnice.
Konkrétnější představu a inspiraci pro vybavení nemovitosti lze získat z vizualizací.
Energetická náročnost budovy je v kategorii D.
Byt je možné doupravit podle představ klienta, stejně tak i úprava pozemku na míru.
K bytu náleží i dostatek prostoru k zaparkování i 4 aut.
Byt je k nastěhování od 1.1.2026.
Byt se nachází v klidné lokalitě s dobrou dostupností, veřejnou příměstskou dopravou a blízkostí veškeré občanské vybavenosti jako jsou restaurace, školka i škola, kulturní zařízení a obecní úřad.
S financováním Vám rádi pomůžeme.
Pro více informací či domluvení schůzky nás kontaktujte.

Cena
4 725 000 Kč /za nemovitost Spočítat hypotéku
Aktualizováno
16. 9. 2025
Adresa
Vracov
ID
1N25002-D
Stavba
Smíšená
Stav objektu
Novostavba
Patro
1.
Typ objektu
Přízemní
Lokalita objektu
Klidná část obce
Vlastnictví
Osobní
Užitná plocha
65 m2
Podlahová plocha
65 m2
Třída energetické náročnosti
D - Méně úsporná
Elektřina
230V
Komunikace
Asfaltová
Doprava
Silnice, Autobus
Voda
Místní zdroj vody
Topné těleso
Radiátory, Infrapanel
Výtah
Bezbarierový přístup
Parkování

Máte zájem o tuto nemovitost?

Tímto, v souladu s nařízením Evropského parlamentu a Rady (EU) 2016/679, v platném znění, prohlašuji, že mi je alespoň 16 let a uděluji tak svůj souhlas se zpracováním zadaných údajů (jméno, telefon, e-mail, ip adresa) společnosti B3 Technology, s.r.o., IČ: 07330600, se sídlem Novostavby 126/23, 435 11 Lom (správce dat), za účelem předání dotazu z tohoto formuláře Vámi vybranému inzerentovi a zpětného kontaktování mé osoby. Osobní údaje bude správce zpracovávat manuálně i automaticky přímo prostřednictvím svých zaměstnanců. Informace předané tímto formulářem budou uloženy v databázi správce maximálně po dobu 10 let. Odvolání souhlasu s uložením a zpracováním poskytnutých dat lze e-mailem na info@realitymat.cz. V případě podezření na neoprávněné použití Vámi poskytnutých údajů máte právo předat podnět k šetření Úřadu pro ochranu osobních údajů. Více informací
Chystáte se prodat nemovitost?
Pomůžeme Vám!

Kontakt

Jiří Němec

Jiří Němec

Přihlášení k odběru

Nenechte si ujít nejnovější nabídky prodeje bytů 3+kk v Vracově.

Tipy Realitymatu

Podobné nabídky