Pronájem komerční nemovitosti, Lhota Rapotina, 1000 m2
Lhota Rapotina
(+ zálohy na energie + provize RK)
Popis
Nabízíme Vám k pronájmu zajímavý komerční objekt, který se nachází v obci Lhota Rapotina, pouhé 4 km od města Boskovice a 13 km od města Blansko.
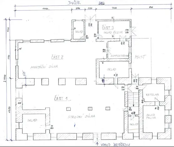
Tento objekt zaujme zejména svou užitnou plochou cca 1000 m², která je rozdělena do dvou nadzemních podlaží. V minulosti sloužil jako stolařská dílna, ale díky rozvodům elektřiny, které jsou tomu přizpůsobeny, je možné ho využít i pro jiné typy výroby, jako skladovací prostory, kanceláře nebo například lehkou výrobu. Velmi dobrá dopravní dostupnost, klidné prostředí vhodné pro podnikání mimo městský ruch, ale s rychlým dosahem všech služeb a infrastruktury.
Nájem je ve výši 25.000, Kč + zálohy na energie (budou přepsány na nového nájemníka).
Součástí budovy jsou také:
• sociální zázemí (sprchy, toalety),
• kancelářské prostory,
• možnost napojení na zabezpečovací systém,
• dvě možnosti vytápění – plynovým kotlem nebo kotlem na tuhá paliva.
Energetická náročnost budovy: PENB – G
Obec Lhota Rapotina leží ve vzdálenosti 13 km od města Blansko, 35 km od města Brno a 4 km od města Boskovice, které tvoří správní centrum (úřady, školy, školky...) severní poloviny okresu Blansko.
Prodávající si vyhrazuje právo určit kupujícího dle vlastních zvolených kritérií.
Máte zájem o tuto nemovitost?
Kpt. Jaroše 157/5, Boskovice
Pomůžeme Vám!
Pomůžeme Vám!
Kontakt

Blanka Fialová - Infolinka RK
Přihlášení k odběru
Nenechte si ujít nejnovější nabídky pronájmu komerčních nemovitostí v Lhotě Rapotině.