Prodej komerční nemovitosti, Lhota Rapotina, 1000 m2

Lhota Rapotina


4 500 000 Kč /za nemovitost
HYPOTÉKA od 20 112 Kč /měs.

(Cena je konečná, neplatíte provizi)


Regionální dodavatelé v Lhotě Rapotině

Popis

Nabízíme Vám ke koupi zajímavý komerční objekt, který se nachází v obci Lhota Rapotina, pouhé 4 km od města Boskovice a 13 km od města Blansko.

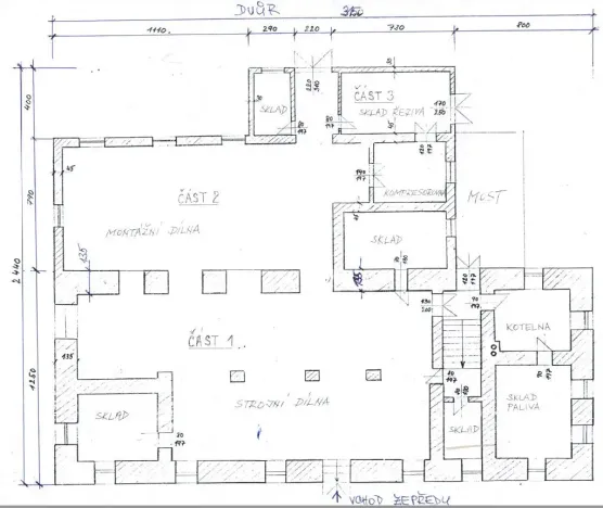
Tento objekt zaujme zejména svou užitnou plochou cca 1000 m², která je rozdělena do dvou nadzemních podlaží. V minulosti sloužil jako stolařská dílna, ale díky rozvodům elektřiny, které jsou tomu přizpůsobeny, je možné ho využít i pro jiné typy výroby, jako skladovací prostory, kanceláře nebo například lehkou výrobu. Velmi dobrá dopravní dostupnost, klidné prostředí vhodné pro podnikání mimo městský ruch, ale s rychlým dosahem všech služeb a infrastruktury.

Součástí budovy jsou také:
• sociální zázemí (sprchy, toalety),
• kancelářské prostory,
• možnost napojení na zabezpečovací systém,
• dvě možnosti vytápění – plynovým kotlem nebo kotlem na tuhá paliva.

Energetická náročnost budovy: PENB – G

Obec Lhota Rapotina leží ve vzdálenosti 13 km od města Blansko, 35 km od města Brno a 4 km od města Boskovice, které tvoří správní centrum (úřady, školy, školky...) severní poloviny okresu Blansko.

Prodávající si vyhrazuje právo určit kupujícího dle vlastních zvolených kritérií.

Cena
4 500 000 Kč /za nemovitost Spočítat hypotéku
Poznámka k ceně
Cena je konečná, neplatíte provizi
Aktualizováno
22. 5. 2025
Adresa
Lhota Rapotina
ID
215725LeD
Stavba
Smíšená
Stav objektu
Dobrý
Užitná plocha
1000 m2
Zastavěná plocha
634 m2
Podlahová plocha
1000 m2
Třída energetické náročnosti
G - Mimořádně nehospodárná
Elektřina
230V, 400V
Plyn
Plynovod
Odpad
Veřejná kanalizace
Komunikace
Zpevněná
Voda
Vodovod

Máte zájem o tuto nemovitost?

Tímto, v souladu s nařízením Evropského parlamentu a Rady (EU) 2016/679, v platném znění, prohlašuji, že mi je alespoň 16 let a uděluji tak svůj souhlas se zpracováním zadaných údajů (jméno, telefon, e-mail, ip adresa) společnosti B3 Technology, s.r.o., IČ: 07330600, se sídlem Novostavby 126/23, 435 11 Lom (správce dat), za účelem předání dotazu z tohoto formuláře Vámi vybranému inzerentovi a zpětného kontaktování mé osoby. Osobní údaje bude správce zpracovávat manuálně i automaticky přímo prostřednictvím svých zaměstnanců. Informace předané tímto formulářem budou uloženy v databázi správce maximálně po dobu 10 let. Odvolání souhlasu s uložením a zpracováním poskytnutých dat lze e-mailem na info@realitymat.cz. V případě podezření na neoprávněné použití Vámi poskytnutých údajů máte právo předat podnět k šetření Úřadu pro ochranu osobních údajů. Více informací
Chystáte se prodat nemovitost?
Pomůžeme Vám!

Kontakt

Blanka Fialová - Infolinka RK

Blanka Fialová - Infolinka RK

Přihlášení k odběru

Nenechte si ujít nejnovější nabídky prodeje komerčních nemovitostí v Lhotě Rapotině.