Pronájem kanceláře, Praha - Dejvice, Generála Píky, 855 m2

Generála Píky, Praha, Dejvice


18,5 € /za metr čtvereční / měsíc
Získejte výhodnou HYPOTÉKU
Regionální dodavatelé v Praze 6

Stěhovací služby

Výkup a prodej starého nábytku

Popis

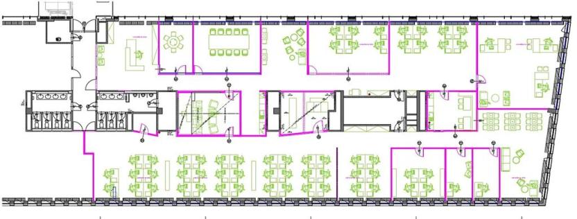
Prémiové kancelářské prostory s moderním dizajnem, připravené k nastěhováni.

Odhalte potenciál svého podnikání v jedné z nejprestižnějších lokalit Prahy.
Nabízíme prostornou kancelářskou jednotku o rozloze 788 m² s výhledem na Pražský hrad, umístněnou v 4. patře renomované budovy Telehouse.

Jednotka se vyznačuje hotovým industriálním vybavením, ideálním pro firmy hledající moderní a flexibilní pracovní prostředí. Ať už chcete vytvořit živou kancelář, kreativní centrum nebo profesionální sídlo, tento prostor je navržen tak, aby splňoval vaše potřeby s elegantní a moderní atmosférou.

Klíčové vlastnosti:

- Kancelářská jednotka o rozloze 788 m² v 4. patře

- Hotový fit-out, připravené k okamžitému nastěhování (nábytek není
součástí)

- Světlý a vzdušný prostor s dostatkem přirozeného světla

- Skvěle dostupná lokalita Prahy 6, s občanskou vybaveností v budově
i okolí

Nenechte si ujít tuto výjimečnou příležitost pozvednout své podnikání novou kanceláří v jedné z nejvyhledávanějších obchodních lokalit Prahy.

Domluvte si prohlídku ještě dnes!

Cena
18,5 € /za metr čtvereční / měsíc
Náklady na bydlení
95 CZK + vlastní spotřeba el.energie a vody
Aktualizováno
12. 5. 2025
Adresa
Generála Píky, Praha, Dejvice
Stavba
Skeletová
Stav objektu
Novostavba
Patro
4. z 6
Užitná plocha
855 m2
Třída energetické náročnosti
A - Mimořádně úsporná
Garáž
Výtah
Bezbarierový přístup
Parkování

Máte zájem o tuto nemovitost?

Tímto, v souladu s nařízením Evropského parlamentu a Rady (EU) 2016/679, v platném znění, prohlašuji, že mi je alespoň 16 let a uděluji tak svůj souhlas se zpracováním zadaných údajů (jméno, telefon, e-mail, ip adresa) společnosti B3 Technology, s.r.o., IČ: 07330600, se sídlem Novostavby 126/23, 435 11 Lom (správce dat), za účelem předání dotazu z tohoto formuláře Vámi vybranému inzerentovi a zpětného kontaktování mé osoby. Osobní údaje bude správce zpracovávat manuálně i automaticky přímo prostřednictvím svých zaměstnanců. Informace předané tímto formulářem budou uloženy v databázi správce maximálně po dobu 10 let. Odvolání souhlasu s uložením a zpracováním poskytnutých dat lze e-mailem na info@realitymat.cz. V případě podezření na neoprávněné použití Vámi poskytnutých údajů máte právo předat podnět k šetření Úřadu pro ochranu osobních údajů. Více informací
Chystáte se prodat nemovitost?
Pomůžeme Vám!

Kontakt

Sofia Strečanská

Sofia Strečanská

Přihlášení k odběru

Nenechte si ujít nejnovější nabídky pronájmu kanceláří v Praze 6.

Podobné nabídky