Pronájem skladu, Hradec Králové - Pražské Předměstí, U Koruny, 153 m2

U Koruny, Hradec Králové, Pražské Předměstí


24 850 Kč /za měsíc
Získejte výhodnou HYPOTÉKU

(+ DPH)


Regionální dodavatelé v Hradci Králové

Popis

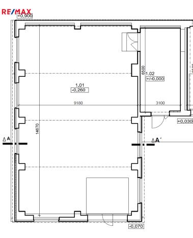
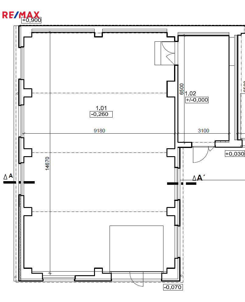
Rádi bychom Vám tímto nabídli možnost pronájmu nebytových prostor o celkové výměře 153 m², které mohou sloužit jako sklad nebo garáž. Vnitřní rozměry prostor jsou 14,67 m x 9,18 m (větší sklad) a 6,5 m x 3,1 m (menší sklad se samostatným vstupem). Vjezdová vrata 2,85 m výška x 3 m šířka.

Elektřina zavedena - samostatné měření spotřeby. Elektřina slouží i jako zdroj vytápění. Prostory jsou napojeny na bezpečnostní agenturu skrze bezpečnostní čidla uvnitř prostor a zároveň jsou pod dohledem kamerového systému.

Prostory se nachází v dobře dostupném areálu s dostatkem manipulační plochy - ulice U Koruny, Hradec Králové. Lokalita je skvěle dopravně obslužná - terminál HD, zastávky MHD, vlakové nádraží hned za rohem.

Měsíční nájemné za nebytové prostory činí 24 850,- Kč + DPH. Vratná kauce ve výši dvou nájmů. Provize RK jeden nájem + DPH. Volné dle domluvy - domluvte si termín prohlídky ještě dnes.

Cena
24 850 Kč /za měsíc
Poznámka k ceně
+ DPH
Aktualizováno
26. 10. 2025
Adresa
U Koruny, Hradec Králové, Pražské Předměstí
ID
211-NP04313
Stavba
Cihlová
Stav objektu
Velmi dobrý
Typ objektu
Přízemní
Lokalita objektu
Centrum obce
Užitná plocha
153 m2
Zastavěná plocha
153 m2
Třída energetické náročnosti
G - Mimořádně nehospodárná
Elektřina
230V
Převod do OV

Máte zájem o tuto nemovitost?

Tímto, v souladu s nařízením Evropského parlamentu a Rady (EU) 2016/679, v platném znění, prohlašuji, že mi je alespoň 16 let a uděluji tak svůj souhlas se zpracováním zadaných údajů (jméno, telefon, e-mail, ip adresa) společnosti B3 Technology, s.r.o., IČ: 07330600, se sídlem Novostavby 126/23, 435 11 Lom (správce dat), za účelem předání dotazu z tohoto formuláře Vámi vybranému inzerentovi a zpětného kontaktování mé osoby. Osobní údaje bude správce zpracovávat manuálně i automaticky přímo prostřednictvím svých zaměstnanců. Informace předané tímto formulářem budou uloženy v databázi správce maximálně po dobu 10 let. Odvolání souhlasu s uložením a zpracováním poskytnutých dat lze e-mailem na info@realitymat.cz. V případě podezření na neoprávněné použití Vámi poskytnutých údajů máte právo předat podnět k šetření Úřadu pro ochranu osobních údajů. Více informací
Chystáte se prodat nemovitost?
Pomůžeme Vám!

Kontakt

Jiří Samek

Jiří Samek

Přihlášení k odběru

Nenechte si ujít nejnovější nabídky pronájmu skladů v Hradci Králové.

Podobné nabídky