Prodej domu na klíč, Šardice, 180 m2

Šardice


7 850 000 Kč /za nemovitost
HYPOTÉKA od 35 085 Kč /měs.
Regionální dodavatelé v Šardicích

Popis

Nabízíme Vám novou nemovitost na prodej.
Jedná se o projekt výstavby dvou sousedících, rodinných domů na klíč. Nemovitosti je možno koupit jak jednotlivě, tak dohromady.
Rodinný dům se nachází v Šardicích, malebné a klidné obci v okrese Hodonín v Jihomoravském kraji, 8 km jihozápadně od Kyjova, ve vinařské oblasti Slovácka.
Tento moderní dvoupodlažní rodinný dům vystavený z materiálů cihel a spiroll panelů, má dispozici 4+kk a celkovou plochu 180 m2. K nemovitosti náleží i prostorná zahrada vhodná k výstavbě pergoly či bazénu.
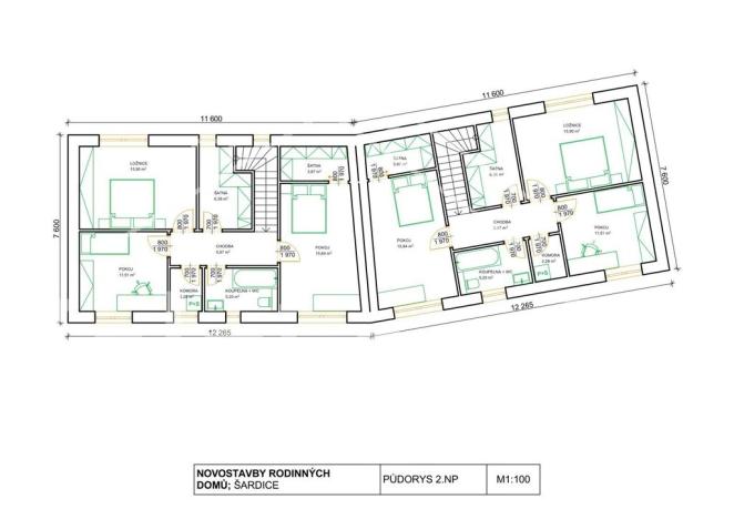
Rozložení a dispozice nemovitosti jsou popsány ve vizualizacích a půdorysech:
Přízemní patro sestává ze vstupní chodby, ze které je vstup do obývacího pokoje s kuchyňským koutem, koupelny se sprchovým koutem a wc, technické místnosti a prostorné garáže. Po schodišti se dostaneme do prvního patra, na kterém se nachází 3 obývací pokoje situované jako ložnice s šatnou a úložnou komorou, také koupelna s wc a vanou.
Konkrétnější představu a inspiraci pro vybavení nemovitosti lze získat z vizualizací.
Energetická náročnost budovy je v kategorii B.
Dům je možné dostavět podle představ klienta, stejně tak i úprava zahrady na míru.
Dům se nachází v klidné lokalitě s dobrou dostupností, veřejnou příměstskou dopravou a blízkostí veškeré občanské vybavenosti jako jsou restaurace, školka i škola, kulturní zařízení a obecní úřad.
S financováním Vám rádi pomůžeme.
Pro více informací či domluvení schůzky nás kontaktujte.

Cena
7 850 000 Kč /za nemovitost Spočítat hypotéku
Aktualizováno
2. 6. 2025
Adresa
Šardice
ID
1N25003
Stavba
Cihlová
Stav objektu
Novostavba
Typ objektu
Patrový
Druh objektu
Rohový
Lokalita objektu
Centrum obce
Užitná plocha
180 m2
Zastavěná plocha
90 m2
Podlahová plocha
180 m2
Plocha pozemku
344 m2
Plocha zahrady
254 m2
Třída energetické náročnosti
B - Velmi úsporná
Elektřina
230V, 400V
Odpad
Veřejná kanalizace
Topení
Ústřední elektrické
Komunikace
Asfaltová
Doprava
Silnice, Autobus
Voda
Místní zdroj vody, Studna
Topné těleso
Podlahové vytápění
Zdroj teplé vody
Elektrokotel
Garáž
Výtah
Bezbarierový přístup
Parkování

Máte zájem o tuto nemovitost?

Tímto, v souladu s nařízením Evropského parlamentu a Rady (EU) 2016/679, v platném znění, prohlašuji, že mi je alespoň 16 let a uděluji tak svůj souhlas se zpracováním zadaných údajů (jméno, telefon, e-mail, ip adresa) společnosti B3 Technology, s.r.o., IČ: 07330600, se sídlem Novostavby 126/23, 435 11 Lom (správce dat), za účelem předání dotazu z tohoto formuláře Vámi vybranému inzerentovi a zpětného kontaktování mé osoby. Osobní údaje bude správce zpracovávat manuálně i automaticky přímo prostřednictvím svých zaměstnanců. Informace předané tímto formulářem budou uloženy v databázi správce maximálně po dobu 10 let. Odvolání souhlasu s uložením a zpracováním poskytnutých dat lze e-mailem na info@realitymat.cz. V případě podezření na neoprávněné použití Vámi poskytnutých údajů máte právo předat podnět k šetření Úřadu pro ochranu osobních údajů. Více informací
Chystáte se prodat nemovitost?
Pomůžeme Vám!

Kontakt

Jiří Němec

Jiří Němec

Přihlášení k odběru

Nenechte si ujít nejnovější nabídky prodeje domů na klíč v Šardicích.

Podobné nabídky