Prodej obchodního prostoru, Sušice, náměstí Svobody, 628 m2 (ID: 1797693)
náměstí Svobody, Sušice
Popis
Dům s příběhem. Stabilní výnos až 8,5% ročně podle využití. . Luxusní prostor k využití.
V samém srdci malebné Sušice, na jejím historickém náměstí, stojí budova, kterou místní dobře znají – dům Koruna. Nese v sobě odkaz doby, kdy byl obchod a bydlení úzce propojeno s centrem města. A dnes?
Koruna je výjimečný dům, který byl v minulosti kompletně zbourán a v roce 2003 znovu postaven jako moderní víceúčelový objekt s respektem k původnímu charakteru místa.
V roce 2014 byla dokončena i podkrovní bytová jednotka – luxusní byt 3+kk s galerií, který může sloužit k bydlení, podnikání, nebo krátkodobému ubytování na špičkové úrovni.
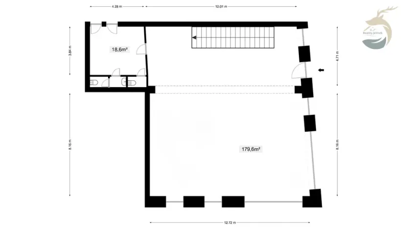
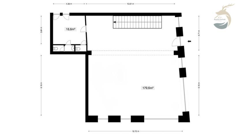
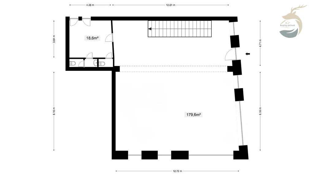
Celková výměra domu činí 628,52 m² rozdělených do tří plnohodnotných podlaží:
1. NP (202,10 m²) – 2. NP (190,40 m²) zavedený obchodní prostor, aktuálně dlouhodobě pronajatý silnému nájemci z oblasti maloobchodu
3. NP (236,02 m²) – luxusní byt 4+kk s velkorysým prostorem, galerií a výjimečnou atmosférou
K domu náleží 1/14 podílu na uzavřeném dvoře a parkovišti, které jsou v této lokalitě obrovskou výhodou.
Proč právě Sušice?
Sušice je žádaná lokalita po celý rok – brána Šumavy, oblíbený výchozí bod turistů, cyklistů, rodin i seniorů.
Historické centrum žije, lidé sem jezdí nejen na dovolenou, ale i za službami, gastro scénou a nákupy.
A právě dům Koruna je součástí tohoto živého organismu – přímo na náměstí, na místě s vysokou průchodností a viditelností. Pro investora, který umí spojit výnos s lokalitou, jde o mimořádnou příležitost.
Máte zájem o tuto nemovitost?
Pomůžeme Vám!
Kontakt

Marcel Jelínek
Přihlášení k odběru
Nenechte si ujít nejnovější nabídky prodeje obchodních prostor v Sušici (okr. Klatovy).
Podobné nabídky

Prodej obchodního prostoru, Klatovy - Beňovy, 934 m2
25 750 000 Kč