Prodej apartmánu, Železná Ruda, 679 m2
Železná Ruda, Špičák
(včetně DPH, včetně poplatků, včetně provize, včetně právního servisu)
Popis
Nabízím vám ke koupi rodinný dům na Špičáku, který se nachází v jednom z nejoblíbenějších šumavských středisek. Tento dům nabízí široké možnosti využití jak pro bydlení, tak i pro podnikání.
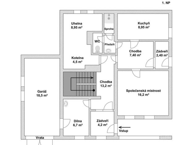
Dům nabízí byt o dispozici 3+1, se dvěma koupelnami. V přízemí je v levé části prostorná garáž, přístupná i z domu, dřevník, kotelna s kotlem na tuhá paliva, v pravé části je velká kuchyň s možností uskladňování potravin a společenskou místností cca pro 15 lidí, které mohou využívat hosté ubytovaní v pěti apartmánech přistavěných v zadní části domu. Dva apartmány jsou dvoulůžkové, dva čtyřlůžkové a jeden třílůžkový. Všechny apartmány mají své vlastní koupelny se sprchou a WC.
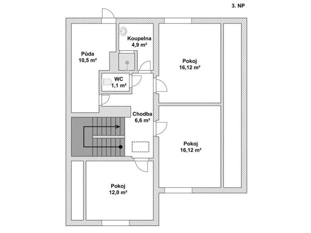
Byt majitele obsahuje v prvním patře kuchyň, obývací pokoj spojený s ložnicí, na chodbě jsou dvě koupelny, jedna s vanoua druhá se sprchovým koutem, v druhém patře je dětský pokoj s patrovým spaním. Vedle tohoto pokoje je místnost, která byla využívaná jako prádelna.
Prádelna je zároveň i jedním ze vstupů do přistavěné části, ve které jsou apartmány na pronájem. Do této části je i samostatný vstup zvenku domu. Každý apartmán je zařízen postelemi podle potřebného počtu osob, koupelnou se sprchovým koutem, zátěžovými koberci.
K domu patří trojgaráž o podlahové ploše 65m2, postavená hned u silnice. Zvenku jsou to tři samostatné vjezdy, ale uvnitř je to jeden celek, kdy v jedné části je i zdviž pro opravování aut. Zároveň další možnost parkování je vedle domu pod přístřeškem, další varianta je i v garáži domu, poslední možnost je i parkování přímo před domem.
Nad trojgaráží je vybudovaný jeden apartmán o podlahové ploše 49m2. Ten je nejnovější a nepotřebuje žádné opravy či rekonstrukce. V tomto apartmánu se v koupelně topí podlahovým topením, ostatní části vytopí krb. Je tady i moderně zařízená kuchyňská linka, v koupelně je sprchový kout.
Dům je v obyvatelném stavu, ale určitě potřebuje rekonstrukci. Užitná ploccha je 570m2, plocha pozemku je 968m2. Na pozemku je venkovní posezení. Penzion disponuje kotelnou s dvěma samostatnými okruhy na topení. . Voda je zajištěna vlastní vrtanou studnou, elektřina je 220V i 380V jak v domě, tak v garážích.
Železnorudsko leží 5 km od hranic s Německem, nabízí desítky kilometrů strojově upravovaných běžeckých tras. Na 8 km sjezdových tratí najde místo každý, od začátečníků až pro profesionální lyžaře. Špičák je nejen rájem pro lyžaře, ale i skvělým místem pro letní rodinné dovolené. V obci jekompletní občanská vybavenost, obchody, školka, škola, restaurace, pošta, bankomaty, dopravní spojení - vlak, autobus, spousta cyklostezek.
Pro domluvení prohlídky mne neváhejte kontaktovat, ráda vás nemovitostí provedu.
Máte zájem o tuto nemovitost?
Sladkovského 2757/38, Plzeň
Pomůžeme Vám!
Pomůžeme Vám!
Kontakt

Mgr. Barbora Provinská
Přihlášení k odběru
Nenechte si ujít nejnovější nabídky prodeje apartmánů v Železné Rudě.
Podobné nabídky

Prodej apartmánu, Srní, 96 m2
9 990 000 Kč

Prodej ubytování, Železná Ruda, Špičácká, 312 m2
19 000 000 Kč

Prodej ubytování, Železná Ruda, 540 m2
5 865 000 Kč