Pronájem kanceláře, Frýdek-Místek - Frýdek, Nádražní, 131 m2 (ID: 1788331)

Nádražní, Frýdek-Místek


228 Kč /za metr čtvereční / měsíc
Získejte výhodnou HYPOTÉKU

(+ provize RK ve výši 1 x nájem + DPH)


Regionální dodavatelé v Frýdku-Místku

Popis

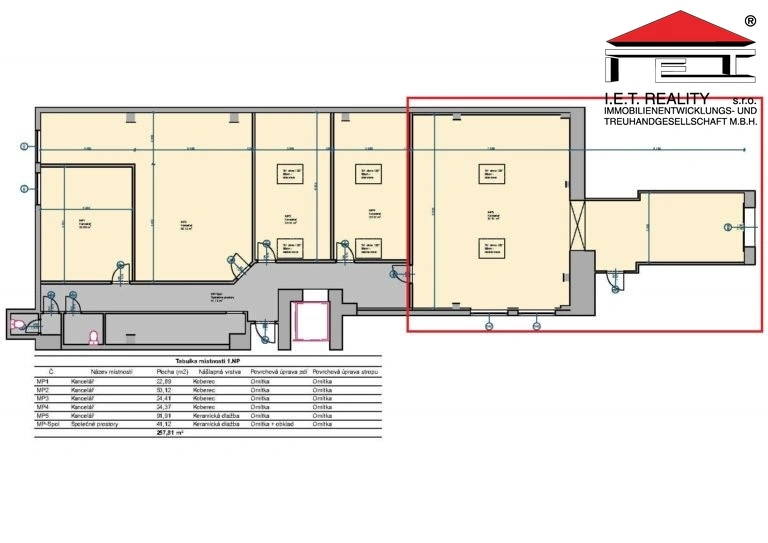
Nabízíme k pronájmu 3 nebytové prostory s celkovou plochou 131 m², které se nachází v přízemí obchodního centra Pracák a mají bezbariérový vchod. Budova OC je v těsné blízkosti železniční stanice ve Frýdku-Místku a přímo naproti Komerční Banky. První nabízená kancelář s plochou 16 m² je umístěná přímo naproti vstupu do budovy, vedle schodiště. Cena nájmu je 4​ ​9​2​7​ ​K​č​/​m​ě​s​í​c​ ​(​3​0​8​ ​K​č​/​m​²​) a cena služeb je 976 Kč + DPH. Druhá kancelář s plochou 24 m² má vlastní vchod ze společné chodby budovy. Cena nájmu je 5​ ​4​8​3​ ​K​č​/​m​ě​s​í​c​ ​(​2​2​8​ ​K​č​/​m​²​)​​ a cena služeb je 2 169 Kč + DPH. Třetí nebytový prostor o velikosti 91 m² má vlastní velký vchod přímo z ulice a také vchod ze společné chodby budovy. Cena nájmu je 2​0​ ​6​8​0​ ​K​č​/​m​ě​s​í​c​ ​(​2​2​7​ ​K​č​/​m​²​)​ a cena služeb je 8 180 Kč + DPH. Nebytové prostory využívají společnou vybavenou kuchyňku a WC v budově. Parkování pro nájemníky je zajištěno na vlastním parkovišti se závorou, přímo za domem. Místnosti jsou napojeny na zabezpečovací systém napojený na SK Policie. Možnost pronájmu světelné reklamy přímo u vchodu na budově. V těsně blízkosti OC je dostatek parkovacích míst pro klienty. Doporučujeme osobní prohlídku.

Cena
228 Kč /za metr čtvereční / měsíc
Poznámka k ceně
+ provize RK ve výši 1 x nájem + DPH
Aktualizováno
5. 1. 2026
Adresa
Nádražní, Frýdek-Místek
ID
IETO837983
Stavba
Smíšená
Stav objektu
Velmi dobrý
Patro
1. z 3
Typ objektu
Patrový
Druh objektu
V bloku
Lokalita objektu
Centrum obce
Užitná plocha
131 m2
Plocha nebytových prostor
131 m2
Třída energetické náročnosti
G - Mimořádně nehospodárná
Parkování

Máte zájem o tuto nemovitost?

Tímto, v souladu s nařízením Evropského parlamentu a Rady (EU) 2016/679, v platném znění, prohlašuji, že mi je alespoň 16 let a uděluji tak svůj souhlas se zpracováním zadaných údajů (jméno, telefon, e-mail, ip adresa) společnosti B3 Technology, s.r.o., IČ: 07330600, se sídlem Novostavby 126/23, 435 11 Lom (správce dat), za účelem předání dotazu z tohoto formuláře Vámi vybranému inzerentovi a zpětného kontaktování mé osoby. Osobní údaje bude správce zpracovávat manuálně i automaticky přímo prostřednictvím svých zaměstnanců. Informace předané tímto formulářem budou uloženy v databázi správce maximálně po dobu 10 let. Odvolání souhlasu s uložením a zpracováním poskytnutých dat lze e-mailem na info@realitymat.cz. V případě podezření na neoprávněné použití Vámi poskytnutých údajů máte právo předat podnět k šetření Úřadu pro ochranu osobních údajů. Více informací
Chystáte se prodat nemovitost?
Pomůžeme Vám!

Kontakt

Jarmila Diblíková

Jarmila Diblíková

Přihlášení k odběru

Nenechte si ujít nejnovější nabídky pronájmu kanceláří v Frýdku-Místku.

Podobné nabídky