Prodej bytu 3+kk, Vír, 84 m2

Vír


430 000 € /za nemovitost
Získejte výhodnou HYPOTÉKU
Regionální dodavatelé v Víru

Popis

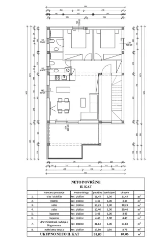
Dovolujeme si Vám nabídnout na prodej nový apartmán s 2 ložnicemi na ostrově Vir v Zadarské oblasti v Chorvatsku. Jedná se o komplex tří rezidenčních budov ve výstavbě. Každá budova sestává z přízemí a dvou pater a celkem 3 bytových jednotek na každém podlaží je jeden apartmán. Dokončení budov A a B je naplánováno na začátek roku 2025 a dokončení budovy C na podzim roku 2025.

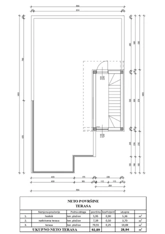
Apartmány budou vybaveny klimatizací v ložnicích a obývacím pokoji, elektrickým podlahovým vytápěním v koupelnách, bezpečnostními dveřmi, budou mít keramiku v celém apartmánu i na terasách, elektrické žaluzie, sítě proti komárům, interkom a LED osvětlení v bytě i na terasách. Nábytek v koupelnách bude vyrobený na míru a všechny terasy budou mít přípravu na jacuzzi (přívod i odvod vody). Vzdálenost od moře je přibližně 200 m.

Nabízený apartmán S3 o rozloze 85,22 m2 je situovaný ve druhém patře budovy B. Sestává z chodby, 2 ložnic, 2 koupelen, obývacího pokoje s kuchyní a jídelnou, kryté terasy a střešní terasy. Apartmánu náleží 2 parkovací stání.

Další apartmány ke koupi v komplexu rezidenčních budov naleznete na našich webových stránkách od ID: CHSM24147N.

Cena
430 000 € /za nemovitost Spočítat hypotéku
Aktualizováno
15. 3. 2025
Adresa
Vír
ID
CHSM24-147N-BS3
Stavba
Smíšená
Stav objektu
Ve výstavbě
Patro
3. z 3
Vybaveno
Ne
Vlastnictví
Osobní
Užitná plocha
84 m2
Podlahová plocha
84 m2
Třída energetické náročnosti
G - Mimořádně nehospodárná
Terasa
Parkování

Máte zájem o tuto nemovitost?

Tímto, v souladu s nařízením Evropského parlamentu a Rady (EU) 2016/679, v platném znění, prohlašuji, že mi je alespoň 16 let a uděluji tak svůj souhlas se zpracováním zadaných údajů (jméno, telefon, e-mail, ip adresa) společnosti B3 Technology, s.r.o., IČ: 07330600, se sídlem Novostavby 126/23, 435 11 Lom (správce dat), za účelem předání dotazu z tohoto formuláře Vámi vybranému inzerentovi a zpětného kontaktování mé osoby. Osobní údaje bude správce zpracovávat manuálně i automaticky přímo prostřednictvím svých zaměstnanců. Informace předané tímto formulářem budou uloženy v databázi správce maximálně po dobu 10 let. Odvolání souhlasu s uložením a zpracováním poskytnutých dat lze e-mailem na info@realitymat.cz. V případě podezření na neoprávněné použití Vámi poskytnutých údajů máte právo předat podnět k šetření Úřadu pro ochranu osobních údajů. Více informací
Chystáte se prodat nemovitost?
Pomůžeme Vám!

Kontakt

Violeta Borisova

Violeta Borisova

Přihlášení k odběru

Nenechte si ujít nejnovější nabídky prodeje bytů 3+kk v Víru.

Podobné nabídky