Pronájem obchodního prostoru, Hradec Králové, Kollárova, 3447 m2 (ID: 1726872)
Kollárova, Hradec Králové, Pražské Předměstí
Popis
Až 3.500 m² prostoru v centru Hradce Králové – výkladce, frekventovaná poloha a naprostá flexibilita využití
Hledáte reprezentativní prostory pro svůj podnik, značku nebo investici?
V samém srdci Hradce Králové, jen pár kroků od hlavního vlakového i autobusového nádraží, přímo u hotelu Černigov a v docházkové vzdálenosti od Riegrova náměstí, nabízíme výjimečně flexibilní komerční prostory o celkové rozloze až 3.500 m².
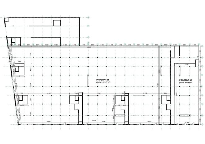
Základní jednotka má výměru 444 m², další části lze připojit až do výše celé plochy, a to po modulárních blocích od cca 600 m². Díky velkým výkladcům do ulice je prostor ideální pro jakýkoli provoz, který chce být vidět – ať už jde o gastronomii, showroom, obchod, služby, fitness, kanceláře nebo zdravotnické zařízení.
Stav: shell & core – čistý základ, který si přizpůsobíte do posledního detailu.
Veškeré inženýrské sítě jsou zavedeny, včetně plynové přípojky.
Možnosti:
Pronájem 10,50 EUR/m2
Koupě – cena: 49.000 Kč/m²
Rozšíření až na 3.500 m² dle potřeb
Proč právě sem:
- Strategická poloha: vlak, autobus, hotel, centrum – vše doslova za rohem
- Vysoká frekvence lidí denně – ideální pro provozy závislé na pohybu zákazníků
- Výkladce pro skvělou viditelnost a přirozený marketing
- Maximální flexibilita prostoru – růst bez nutnosti stěhování
- Možnost individuálního řešení podle vašeho konceptu
Zaujalo vás to? Domluvme si prohlídku. Tento prostor může být začátkem něčeho velkého.
Máte zájem o tuto nemovitost?
Pomůžeme Vám!
Kontakt

Filip Veselý MRE
Přihlášení k odběru
Nenechte si ujít nejnovější nabídky pronájmu obchodních prostor v Hradci Králové.