Pronájem skladu, Ostrava - Heřmanice, Orlovská, 2991 m2

Orlovská, Ostrava, Heřmanice


650 000 Kč /za měsíc
Získejte výhodnou HYPOTÉKU
Regionální dodavatelé v Ostravě

Pojištění a finance

Popis

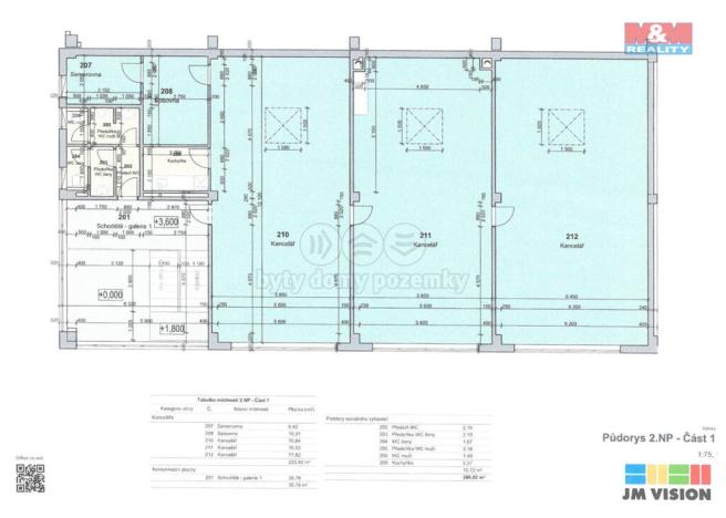
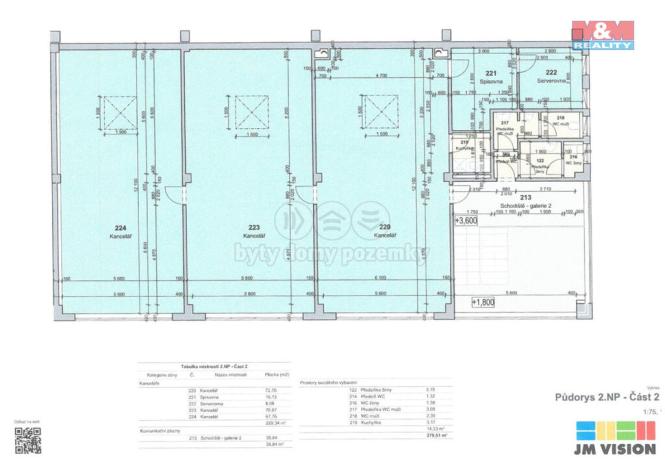
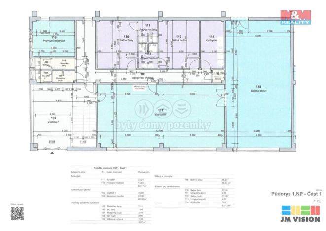
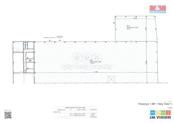
Předmětem pronájmu jsou skladové, výrobní a obchodní prostory včetně kanceláří a zázemí v nově postaveném objektu v Ostravě - Heřmanicích.
Díky své dostupnosti a napojení na polský, český i slovenský trh a díky novým prostorům a blízkosti MHD činí nemovitost lukrativní. Vlastní parkoviště, manipulační plochy, nakládací můstky, kanceláře, šatny kuchyňky a sociální zázemí.
Možnost využití i jako cross-dock.
K dispozici 2 budovy s podobně velkými prostory.
Specifikace:
Budovy jsou určeny pro skladování, distribuci, kanceláře, výdejny a lehké výrobní odvětví.
Samozřejmostí je bezpečnostní systém. Otázky rádi zodpovíme při prohlídce.

Cena
650 000 Kč /za měsíc
Aktualizováno
13. 3. 2025
Adresa
Orlovská, Ostrava, Heřmanice
ID
894875
Stavba
Montovaná
Stav objektu
Novostavba
Vybaveno
Ano
Lokalita objektu
Okraj obce
Vlastnictví
Osobní
Užitná plocha
2991 m2
Plocha pozemku
4761 m2

Máte zájem o tuto nemovitost?

Tímto, v souladu s nařízením Evropského parlamentu a Rady (EU) 2016/679, v platném znění, prohlašuji, že mi je alespoň 16 let a uděluji tak svůj souhlas se zpracováním zadaných údajů (jméno, telefon, e-mail, ip adresa) společnosti B3 Technology, s.r.o., IČ: 07330600, se sídlem Novostavby 126/23, 435 11 Lom (správce dat), za účelem předání dotazu z tohoto formuláře Vámi vybranému inzerentovi a zpětného kontaktování mé osoby. Osobní údaje bude správce zpracovávat manuálně i automaticky přímo prostřednictvím svých zaměstnanců. Informace předané tímto formulářem budou uloženy v databázi správce maximálně po dobu 10 let. Odvolání souhlasu s uložením a zpracováním poskytnutých dat lze e-mailem na info@realitymat.cz. V případě podezření na neoprávněné použití Vámi poskytnutých údajů máte právo předat podnět k šetření Úřadu pro ochranu osobních údajů. Více informací
Chystáte se prodat nemovitost?
Pomůžeme Vám!
Theleadway banner

Kontakt

Kateřina Jaglářová

Kateřina Jaglářová

Přihlášení k odběru

Nenechte si ujít nejnovější nabídky pronájmu skladů v Ostravě.

Podobné nabídky