Prodej komerčního pozemku, Moravské Budějovice - Vesce, 16208 m2

Vesce


Cena na vyžádání /za nemovitost
Získejte výhodnou HYPOTÉKU

(info v RK)


Regionální dodavatelé v Moravských Budějovicích

Popis

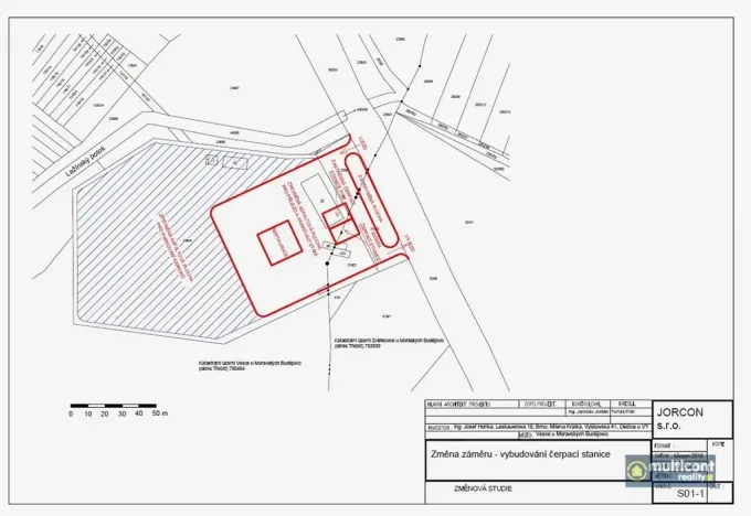
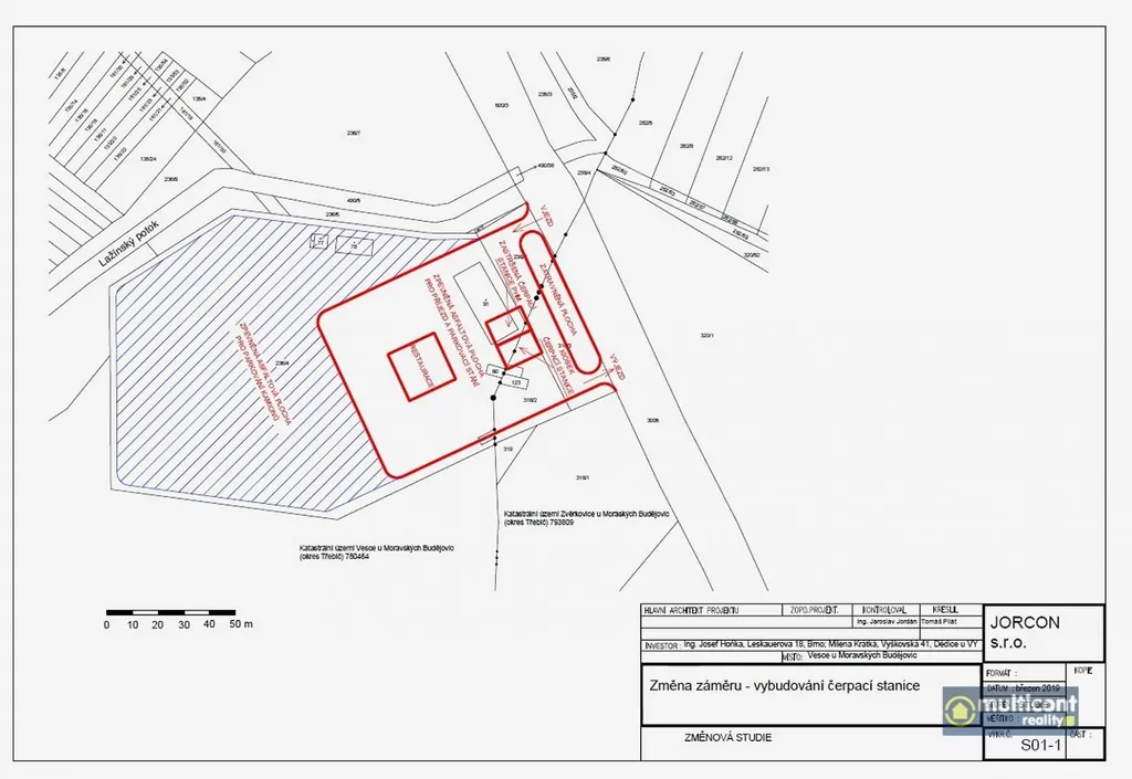
V exkluzivním zastoupení vlastníků si dovolujeme nabídnout pozemek, sousedící se silnicí Jihlava - Znojmo, u Moravských Budějovic, vhodný ke stavbě areálu motorestu, hotelu, čerpací stanice a dalších staveb typu např. Rohlenka. Pozemek se rozprostírá na pozemcích dvou katastrálních území a v minulosti zde byla obalovna, což skýtá výhodu přítomnosti všech inženýrských sítí v naddimenzované podobě, v areálu i samostatný transformátor, je zde možnost vybudování parkoviště pro cca 70 kamionů, tudíž by zde mohla vzniknout i odpočívka, tolik na této trase potřebná. Aktuálně stále v platnosti záměr vybudování čerpací stanice, i se studií, navíc s restaurací a již zmíněným parkovištěm pro kamiony na zpevněné ploše, včetně povolení ŘSD na jimi vybudovaný odbočovací pruh v délce 130 m. Plocha pozemku z větší části zpevněná, zbytky areálu disponují i mostní váhou, zbytkem stavby u ní, oploceno. Více informací podáme vážným zájemcům osobně a kvalifikovaně. Příležitost pro investory, kteří vědí, jaká je dopravní situace na trase Praha-Vídeň a zejména situace v oblasti zaparkování a odstavení vozidel. Nabízíme jim areál, přímo sousedící s touto frekventovanou silnicí, s bohatými možnostmi, jaké pozemek skýtá.

Cena
Cena na vyžádání Spočítat hypotéku
Poznámka k ceně
info v RK
Aktualizováno
30. 1. 2025
Adresa
Vesce
ID
925
Plocha pozemku
16208 m2
Elektřina
230V, 400V
Plyn
Plynovod
Odpad
Veřejná kanalizace
Komunikace
Asfaltová, Betonová
Doprava
Vlak, Silnice, Autobus
Voda
Vodovod
Bezbarierový přístup

Máte zájem o tuto nemovitost?

Tímto, v souladu s nařízením Evropského parlamentu a Rady (EU) 2016/679, v platném znění, prohlašuji, že mi je alespoň 16 let a uděluji tak svůj souhlas se zpracováním zadaných údajů (jméno, telefon, e-mail, ip adresa) společnosti B3 Technology, s.r.o., IČ: 07330600, se sídlem Novostavby 126/23, 435 11 Lom (správce dat), za účelem předání dotazu z tohoto formuláře Vámi vybranému inzerentovi a zpětného kontaktování mé osoby. Osobní údaje bude správce zpracovávat manuálně i automaticky přímo prostřednictvím svých zaměstnanců. Informace předané tímto formulářem budou uloženy v databázi správce maximálně po dobu 10 let. Odvolání souhlasu s uložením a zpracováním poskytnutých dat lze e-mailem na info@realitymat.cz. V případě podezření na neoprávněné použití Vámi poskytnutých údajů máte právo předat podnět k šetření Úřadu pro ochranu osobních údajů. Více informací
Chystáte se prodat nemovitost?
Pomůžeme Vám!

Kontakt

Karel Rozsypal

Karel Rozsypal

Přihlášení k odběru

Nenechte si ujít nejnovější nabídky prodeje komerčních pozemků v Moravských Budějovicích.

Podobné nabídky