Prodej kanceláře, Ostrava, Českobratrská, 580 m2 (ID: 1708503)

Českobratrská, Moravská Ostrava


26 900 000 Kč /za nemovitost
HYPOTÉKA od 120 227 Kč /měs.
Regionální dodavatelé v Ostravě

Popis

Reprezentativní sídlo na prestižní adrese v centru Ostravy. Vila, která osloví klienty, hledající pro své podnikatelké aktivity budovu prvorepublikové architektury v kombinaci s požadavky na zázemí odpovídající moderním trendům.

Špičkové zázemí, parkovací stání na pozemku vily, vynikající zviditelnění firmy a mnohem více nabízí tato nabídka prodeje vily na ul. Českobratrská v Moravské Ostravě.

Budova byla postavena dle návrhu architekta Ing. R. Hladiše z roku 1922. Užitná plocha budovy 580m2 plus technické zázemí je rozdělena do čtyř podlaží.
Hlavním vchodem z ulice do budovy vstoupíte do haly s recepcí, dále navazují dvě kanceláře a zasedací místnost se vstupem na balkon.
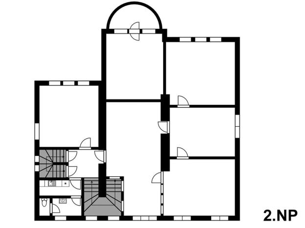
Ve druhém podlaží se nachází reprezentativní přijímací hala, ze které je vstup do prosklené zasedací místnosti a také do čtyř neprůchozích kanceláří.
Třetí patro tvoří čtyři kanceláře.
Každé podlaží budovy je vybaveno moderní kuchyňkou s myčkou a také pánskými a dámskými toaletami.
Kancelářské prostory v suterénu s vlastním vstupem z ulice mohou být odděleny od ostatních částí vily.
Dvě garážové stání s vraty na dálkové ovládání a technická místnost v suterénu rozšiřuje možnost využití budovy pro potřeby menších skladovacích prostor, krytého parkování atd.

Rozložení místností jednotlivých podlaží můžete prohlédnout v přiložených půdorysech ve fotogalerii.

Dům prošel v roce 2020 rozsáhlou rekonstrukcí, která zahrnovala:
výměnu nových dřevěných oken
kompletní výměnu elektrických a vodovodních rozvodů
instalaci IT rozvodů ve všech kancelářích a zasedacích místnostech
nové podlahy a omítky v celé nemovitosti
kompletní oprava fasády
nové kuchyně a sanitu
instalaci nových kotlů na vytápění (kombinace kondenzačního kotle Brötje a záložní elektrický Bosch)
nové garážové vrata Hörmann
vjezdová brána na dálkové ovládání
kamerový systém a napojení na pult centrální ochrany

Zároveň byly v interiéru zachovány původní prvky z doby prvorepublikové výstavby budovy, zejména interiérové vitráže aj.

Propojení moderního designu s těmito historickými prvky vytváří příjemnou atmosféru v celé budově.

Mezi další významné benefity patří 12 parkovacích míst (dvě garážové a 10 venkovních) a vynikající dostupnost centra Ostravy.

Zveme na prohlídku zájemce, kteří hledají vysoký komfort a nadstandardní zázemí pro sídlo své firmy. Rádi Vám sdělíme veškeré informace, prosím, kontaktujte nás.

Cena
26 900 000 Kč /za nemovitost Spočítat hypotéku
Aktualizováno
17. 9. 2025
Adresa
Českobratrská, Moravská Ostrava
ID
1822
Stavba
Cihlová
Stav objektu
Po rekonstrukci
Lokalita objektu
Centrum obce
Užitná plocha
580 m2
Plocha zahrady
719 m2
Třída energetické náročnosti
D - Méně úsporná
Ukazatel energetické náročnosti
40 kWh/m2 za rok
Plyn
Plynovod
Odpad
Veřejná kanalizace
Telekomunikace
Internet
Voda
Vodovod
Zdroj topení
Plynový kondenzační kotel
Zdroj teplé vody
Plynový kotel
Garáž
Parkování

Máte zájem o tuto nemovitost?

Tímto, v souladu s nařízením Evropského parlamentu a Rady (EU) 2016/679, v platném znění, prohlašuji, že mi je alespoň 16 let a uděluji tak svůj souhlas se zpracováním zadaných údajů (jméno, telefon, e-mail, ip adresa) společnosti B3 Technology, s.r.o., IČ: 07330600, se sídlem Novostavby 126/23, 435 11 Lom (správce dat), za účelem předání dotazu z tohoto formuláře Vámi vybranému inzerentovi a zpětného kontaktování mé osoby. Osobní údaje bude správce zpracovávat manuálně i automaticky přímo prostřednictvím svých zaměstnanců. Informace předané tímto formulářem budou uloženy v databázi správce maximálně po dobu 10 let. Odvolání souhlasu s uložením a zpracováním poskytnutých dat lze e-mailem na info@realitymat.cz. V případě podezření na neoprávněné použití Vámi poskytnutých údajů máte právo předat podnět k šetření Úřadu pro ochranu osobních údajů. Více informací
Chystáte se prodat nemovitost?
Pomůžeme Vám!

Kontakt

Ing. Radmila Hladná

Ing. Radmila Hladná

Přihlášení k odběru

Nenechte si ujít nejnovější nabídky prodeje kanceláří v Ostravě.

Podobné nabídky