Pronájem obchodního prostoru, Velká Bíteš, 101 m2

Velká Bíteš


30 300 Kč /za měsíc
Získejte výhodnou HYPOTÉKU

(Včetně energii a DPH.)


Regionální dodavatelé v Velké Bíteši

Popis

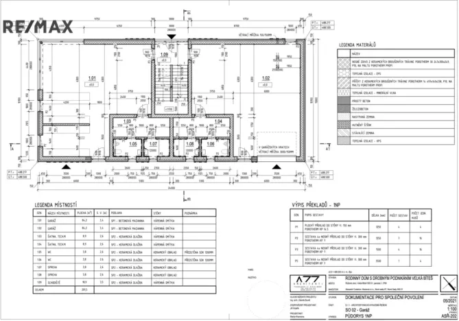
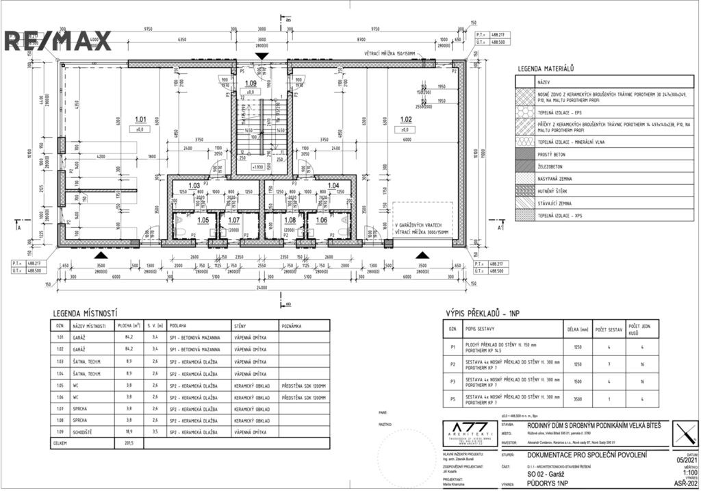
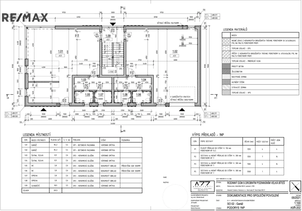
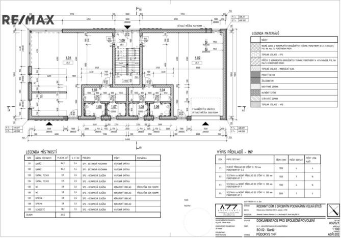
Hledáte reprezentativní prostor pro své služby – zubní ordinaci, masážní studio, kadeřnictví, pedikúru nebo jiné péče o klienty? Ve Velké Bíteši nabízíme k pronájmu přízemní prostor o celkové výměře 101 m² v uzavřeném a udržovaném areálu.
Prostor (označení 1.01, 1.03, 1.05 a 1.07) je možné flexibilně rozdělit na několik samostatných místností – například čekárnu a ordinaci, dvě až tři samostatné pracovny, kosmetický a masážní box apod. Dispozici lze přizpůsobit podle konkrétního typu provozu i požadavků hygieny. Díky přízemnímu umístění je zajištěn pohodlný přístup pro klienty všech věkových kategorií.
Měsíční nájemné činí 30 300 Kč a zahrnuje nájem, topení, elektřinu i vodu, což umožňuje jednoduché plánování nákladů bez nečekaných výdajů.
Součástí moderní budovy jsou společné toalety a kuchyňka. Uzavřený areál nabízí dostatek parkovacích míst přímo u objektu, klidné prostředí a příjemné okolí se zelení – ideální pro služby, kde je důležitý komfort a soukromí klientů.
Areál se nachází v blízkosti dálnice D1 (exit Devět Křížů), což zajišťuje snadnou dostupnost nejen z Velké Bíteše, ale i z širšího okolí. Celková plocha areálu činí 6 189 m² a tvoří jej dvě moderní dvoupatrové budovy s celkovou podlahovou plochou 1 100 m². Je možné pronajmout jednotlivé jednotky, větší část budovy nebo celý objekt podle rozsahu vašeho podnikání.
Prostor je vhodný zejména pro zdravotní a estetické služby, poradenské činnosti či jiné klientsky orientované provozy, kde je důležitá dostupnost, parkování a příjemné prostředí.
Pro více informací nebo domluvení prohlídky mě neváhejte kontaktovat. Pronajímající si vyhrazuje právo vybrat nájemce na základě jím zvolených kritérií.

Cena
30 300 Kč /za měsíc
Poznámka k ceně
Včetně energii a DPH.
Aktualizováno
28. 3. 2026
Adresa
Velká Bíteš
ID
144-NP02899
Stavba
Cihlová
Stav objektu
Novostavba
Patro
1. z 2
Typ objektu
Patrový
Lokalita objektu
Klidná část obce
Užitná plocha
101 m2
Třída energetické náročnosti
B - Velmi úsporná
Elektřina
230V, 400V
Odpad
Veřejná kanalizace
Komunikace
Asfaltová
Telekomunikace
Internet, Kabelové rozvody
Doprava
Vlak, Dálnice, Silnice, Autobus
Voda
Vodovod
Převod do OV
Parkování

Máte zájem o tuto nemovitost?

Tímto, v souladu s nařízením Evropského parlamentu a Rady (EU) 2016/679, v platném znění, prohlašuji, že mi je alespoň 16 let a uděluji tak svůj souhlas se zpracováním zadaných údajů (jméno, telefon, e-mail, ip adresa) společnosti B3 Technology, s.r.o., IČ: 07330600, se sídlem Novostavby 126/23, 435 11 Lom (správce dat), za účelem předání dotazu z tohoto formuláře Vámi vybranému inzerentovi a zpětného kontaktování mé osoby. Osobní údaje bude správce zpracovávat manuálně i automaticky přímo prostřednictvím svých zaměstnanců. Informace předané tímto formulářem budou uloženy v databázi správce maximálně po dobu 10 let. Odvolání souhlasu s uložením a zpracováním poskytnutých dat lze e-mailem na info@realitymat.cz. V případě podezření na neoprávněné použití Vámi poskytnutých údajů máte právo předat podnět k šetření Úřadu pro ochranu osobních údajů. Více informací
Chystáte se prodat nemovitost?
Pomůžeme Vám!

Kontakt

Miroslav Prokeš

Miroslav Prokeš

Přihlášení k odběru

Nenechte si ujít nejnovější nabídky pronájmu obchodních prostor v Velké Bíteši.

Podobné nabídky