Pronájem skladu, Třanovice, 550 m2

Třanovice


47 000 Kč /za měsíc
Získejte výhodnou HYPOTÉKU
Regionální dodavatelé v Třanovicích

Popis

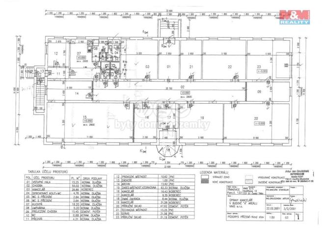
Nabízíme k dlouhodobému pronájmu administrativní a skladovací prostory. Administrativní objekt se skládá celkem z 8 místností. Jedná se o 6 kanceláří, velkou zasedací místnost a místnost určenou pro skladování včetně možnosti vjezdu . K této administrativní budově je možno si navíc pronajmout skladovací prostory v sousední hale s těmito možnostmi: Rozměry haly: s rampou 11,5 x 11 m, cca 125 m2, cena nájmu je 12 500,-Kč/měsíc. Další skladovací prostor s přímým vjezdem 25 x 11 m, cca 275 m2, cena nájmu je 27 500,-Kč/měsíc. Skladovací prostory se nenabízejí k pronájmu samostatně. V administrativní budově je k dispozici kuchyňka s posezením a soc. zázemí včetně tech. prostoru. Komerční objekt se nachází v oploceném areálu a je zde možnost parkovacích míst pro cca 20 vozidel. Administrativní budova je zateplena, má novou střechu a nový kombinovaný kotel. Dohoda je možná, Předání a uvolnění nemovitostí je dáno po vzájemné dohodě. Více informací získáte u makléře.

Cena
47 000 Kč /za měsíc
Aktualizováno
13. 5. 2025
Adresa
Třanovice
ID
895944
Stavba
Cihlová
Stav objektu
Velmi dobrý
Vybaveno
Částečně
Lokalita objektu
Klidná část obce
Vlastnictví
Osobní
Užitná plocha
550 m2

Máte zájem o tuto nemovitost?

Tímto, v souladu s nařízením Evropského parlamentu a Rady (EU) 2016/679, v platném znění, prohlašuji, že mi je alespoň 16 let a uděluji tak svůj souhlas se zpracováním zadaných údajů (jméno, telefon, e-mail, ip adresa) společnosti B3 Technology, s.r.o., IČ: 07330600, se sídlem Novostavby 126/23, 435 11 Lom (správce dat), za účelem předání dotazu z tohoto formuláře Vámi vybranému inzerentovi a zpětného kontaktování mé osoby. Osobní údaje bude správce zpracovávat manuálně i automaticky přímo prostřednictvím svých zaměstnanců. Informace předané tímto formulářem budou uloženy v databázi správce maximálně po dobu 10 let. Odvolání souhlasu s uložením a zpracováním poskytnutých dat lze e-mailem na info@realitymat.cz. V případě podezření na neoprávněné použití Vámi poskytnutých údajů máte právo předat podnět k šetření Úřadu pro ochranu osobních údajů. Více informací
Chystáte se prodat nemovitost?
Pomůžeme Vám!

Kontakt

Bc. Jiří Kozák

Bc. Jiří Kozák

Přihlášení k odběru

Nenechte si ujít nejnovější nabídky pronájmu skladů v Třanovicích.

Podobné nabídky