Pronájem obchodního prostoru, Holešov, Palackého, 178 m2
Palackého, Holešov
Popis
Nabízíme Vám k pronájmu tento obchodní prostor v obchodním centru Irisovka v Holešově na ulici Palackého.
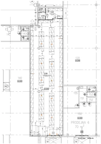
Jedná se o obchodní jednotku o velikosti 178m2 - aktuálně je zde obchod BANQUET, který koncem ledna 2025 končí. Ve fotografiích je také půdorys a situační nákres - prostro BANQUET.
Prostor se skládá z hlavní prodejní části + zázemí - šatny, WC, sklad. Prostor je přístupný ze zadní strany budovy (pro zásobování), kde jsou také v ceně nájmu obsaženy vyhrazená parkovací místa pro zaměstnance. Prostor bude vyklizený a připravený pro nového nájemce od 1.2.2024.
Nájem činí 280,-Kč/m2/měsíc + 35,-Kč/m2/měsíc poplatky za služby (zimní a letní úklid, veřejné osvětlení, vyvezení košů před prodejnou atd.) + energie. Elektřina a voda mají samostatné měřiče.
Celková měsíční platba za nájem činí 49.840,- Kč + 6.230,-Kč služby + energie.
Vratná kauce činí 2 nájmy.
Prohlídka možná kdykoliv - v případ zájmu mě prosím kontaktujte.
Máte zájem o tuto nemovitost?
Palackého 859/78, Holešov
Pomůžeme Vám!
Pomůžeme Vám!
Kontakt
 
                        Mgr. Jiří Kaňa, MBA
Přihlášení k odběru
Nenechte si ujít nejnovější nabídky pronájmu obchodních prostor v Holešově.
 
                                                                                     
                                                                                     
                                                                                     
                                                                                     
                                                                                     
                                                                                     
                                                                                     
                                                                                     
                                                                                     
                                                                                     
                                                                                     
         
         
        