Prodej výrobních prostor, Libčeves, okres louny, 1700 m2

Libčeves, okres louny


17 450 000 Kč /za nemovitost
HYPOTÉKA od 77 991 Kč /měs.
Regionální dodavatelé

Popis

Ve výhradním zastoupení nabízíme k prodeji celý rozlehlý areál v obci Libčeves, situovaný v krásné krajině CHKO České středohoří, nedaleko měst Most, Louny, Litoměřice a Teplice. Tento unikátní areál poskytuje nádherný výhled a je ideální pro široké spektrum využití.

Parametry nemovitosti:
• Pozemek 17 700 m²s objekty:
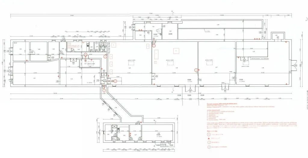
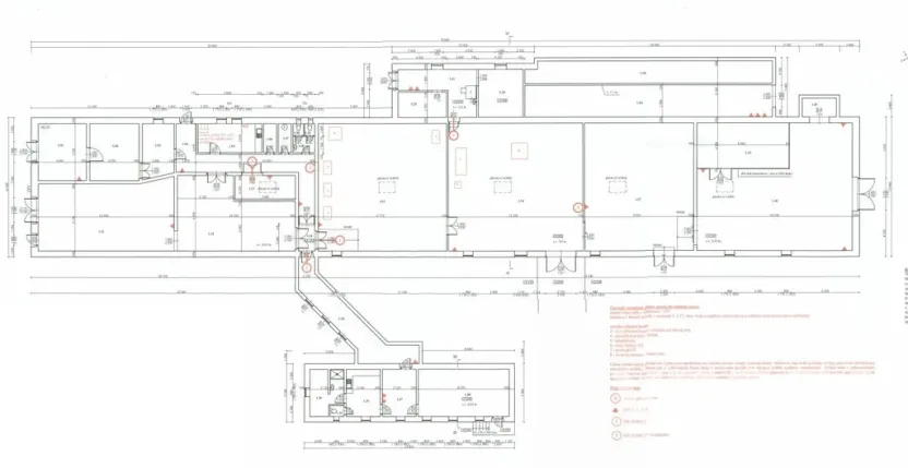
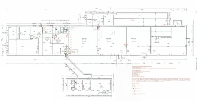
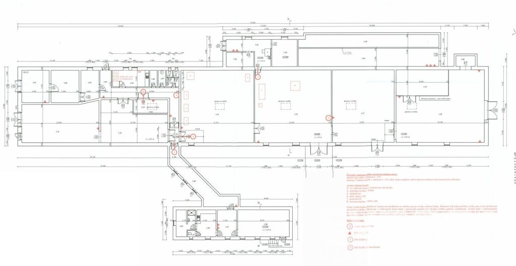
• Výrobní hala se zastavěnou plochou 1 333 m² – dříve využívaný jako bažantnice (líhně), nyní jako výrobní a skladovací prostor pro produkci mycích houbiček a drátěnek. V objektu se dále nachází obytný prostor např. pro správce objektu, zaměstnance
• Rodinný dům (95 m² zastavěné plochy) s možností vlastního bydlení.
• Pozemek s možností výstavby domu, pozemek č. 932/20
• Garáže se třemi vjezdy
• Ovocný (třešňový) sad o ploše 66 513 m²

Objekty jsou napojeny na vodovodní řad, odpad je řešen žumpou, výrobní hala je vybavena kotelnou na uhlí, která sloužit i k vytápění rodinného domu. Alternativně je dům možné vytápět elektrokotlem.

Tento areál je vhodný pro skladovací i výrobní účely, zároveň svou polohou a výhledem nabízí velký potenciál pro developerské záměry, například rekreační výstavbu. Obec Libčeves momentálně pracuje na územním plánu, což přináší možnost přizpůsobit využití nemovitosti vašim plánům.

Areál je skvělou volbou pro lehkou výrobu, zemědělské či rostlinné podnikání, a zároveň poskytuje příležitost pro klidné bydlení v malebném prostředí.

Aktuální výpis z územního plánu ve fotogalerii

Pro další informace, či prohlídku kontaktujte makléře nemovitosti.
Po domluvě jsou prohlídky možné i o víkendech.

Cena
17 450 000 Kč /za nemovitost Spočítat hypotéku
Aktualizováno
28. 10. 2025
Adresa
Libčeves, okres louny
ID
922767
Stavba
Smíšená
Stav objektu
Před rekonstrukcí
Typ objektu
Patrový
Vlastnictví
Osobní
Užitná plocha
1700 m2
Zastavěná plocha
1620 m2
Plocha pozemku
84220 m2
Plocha nebytových prostor
1300 m2
Třída energetické náročnosti
G - Mimořádně nehospodárná
Elektřina
400V
Odpad
Jímka
Topení
Jiné
Voda
Vodovod
Garáž

Máte zájem o tuto nemovitost?

Tímto, v souladu s nařízením Evropského parlamentu a Rady (EU) 2016/679, v platném znění, prohlašuji, že mi je alespoň 16 let a uděluji tak svůj souhlas se zpracováním zadaných údajů (jméno, telefon, e-mail, ip adresa) společnosti B3 Technology, s.r.o., IČ: 07330600, se sídlem Novostavby 126/23, 435 11 Lom (správce dat), za účelem předání dotazu z tohoto formuláře Vámi vybranému inzerentovi a zpětného kontaktování mé osoby. Osobní údaje bude správce zpracovávat manuálně i automaticky přímo prostřednictvím svých zaměstnanců. Informace předané tímto formulářem budou uloženy v databázi správce maximálně po dobu 10 let. Odvolání souhlasu s uložením a zpracováním poskytnutých dat lze e-mailem na info@realitymat.cz. V případě podezření na neoprávněné použití Vámi poskytnutých údajů máte právo předat podnět k šetření Úřadu pro ochranu osobních údajů. Více informací
Chystáte se prodat nemovitost?
Pomůžeme Vám!

Kontakt

Lenka Erlebachová

Lenka Erlebachová

Přihlášení k odběru

Nenechte si ujít nejnovější nabídky prodeje výrobních prostor.

Podobné nabídky