Pronájem skladu, Bystřice pod Hostýnem, 427 m2

Bystřice pod Hostýnem


46 970 Kč /za měsíc
Získejte výhodnou HYPOTÉKU
Regionální dodavatelé v Bystřici pod Hostýnem

Popis

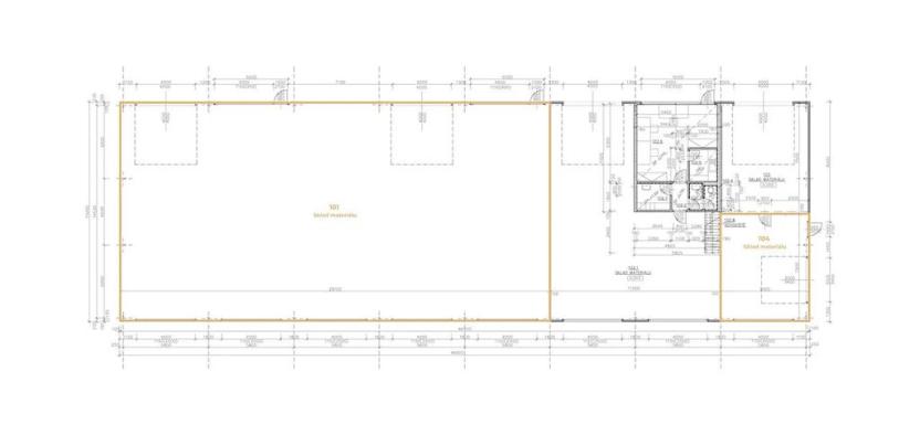
Ve výhradním zastoupení pronajímatele Vám nabízím k pronájmu skladovací halu v areálu Horákovy školky - Bystřice pod Hostýnem.

Jedná se o 2 volné sklady - 427m2 a 42m2, které je možné pronajmout zvlášť či dohromady.

Hala bude dokončena v květnu 2025, stále je tedy možnost se s budoucím nájemcem domluvit na jakémkoliv individuálním požadavku. Výška stropu je 4,8m2, zátěž podlahy 5000kg/m2, podlaha drátkobeton. Je možné halu vytápět plyn. sálavými panely, které by byly umístěné pod stropem. V těsné blízkosti/okolo haly bude betonová plocha a dále manipulační plocha viz. fotografie. Sekční vrata jsou o velikosti 4x4m.

Možné je také udělat vestavbu (kanceláře, WC, zázemí) v případě smlouvy na 10 let.

Aktuálně nabízíme halu 427m2 jako celek, v případě zájmu se dá rozdělit po 5,8m modulech dle individuální domluvy.

Nájemné za nevytápěných 427m2 činí 110,-Kč za 1m2/měsíc, tedy 46.970,-Kč + DPH za měsíc. V případě vytápěného prostoru 150,-Kč/m2.

Pokud by budoucí nájemník požadoval prostor rozdělit a pronajmout si menší část, tak cena nájemného činí 150,-Kč/m2.

Kanceláře/zázemí 200,-Kč/m2.

Taktéž je nutné uhradit vratnou kauci ve výši jednoho nájemného a jednorázovou provizi ve výši jednoho nájmu + DPH.

V případě zájmu o jakékoliv informace mi prosím zavolejte.

Cena
46 970 Kč /za měsíc
Aktualizováno
14. 11. 2024
Adresa
Bystřice pod Hostýnem
ID
056
Stavba
Montovaná
Stav objektu
Novostavba
Lokalita objektu
Klidná část obce
Užitná plocha
427 m2
Zastavěná plocha
676 m2
Podlahová plocha
427 m2
Třída energetické náročnosti
G - Mimořádně nehospodárná
Plyn
Plynovod
Topení
Lokální plynové
Doprava
Vlak, Silnice, Autobus
Voda
Vodovod
Parkování

Máte zájem o tuto nemovitost?

Tímto, v souladu s nařízením Evropského parlamentu a Rady (EU) 2016/679, v platném znění, prohlašuji, že mi je alespoň 16 let a uděluji tak svůj souhlas se zpracováním zadaných údajů (jméno, telefon, e-mail, ip adresa) společnosti B3 Technology, s.r.o., IČ: 07330600, se sídlem Novostavby 126/23, 435 11 Lom (správce dat), za účelem předání dotazu z tohoto formuláře Vámi vybranému inzerentovi a zpětného kontaktování mé osoby. Osobní údaje bude správce zpracovávat manuálně i automaticky přímo prostřednictvím svých zaměstnanců. Informace předané tímto formulářem budou uloženy v databázi správce maximálně po dobu 10 let. Odvolání souhlasu s uložením a zpracováním poskytnutých dat lze e-mailem na info@realitymat.cz. V případě podezření na neoprávněné použití Vámi poskytnutých údajů máte právo předat podnět k šetření Úřadu pro ochranu osobních údajů. Více informací
Chystáte se prodat nemovitost?
Pomůžeme Vám!

Kontakt

Mgr. Jiří Kaňa, MBA

Mgr. Jiří Kaňa, MBA

Přihlášení k odběru

Nenechte si ujít nejnovější nabídky pronájmu skladů v Bystřici pod Hostýnem.

Podobné nabídky