Pronájem výrobních prostor, Brno, Jihlavská, 983 m2

Jihlavská, Brno


160 Kč /za metr čtvereční / měsíc
Získejte výhodnou HYPOTÉKU
Regionální dodavatelé v Brně

Popis

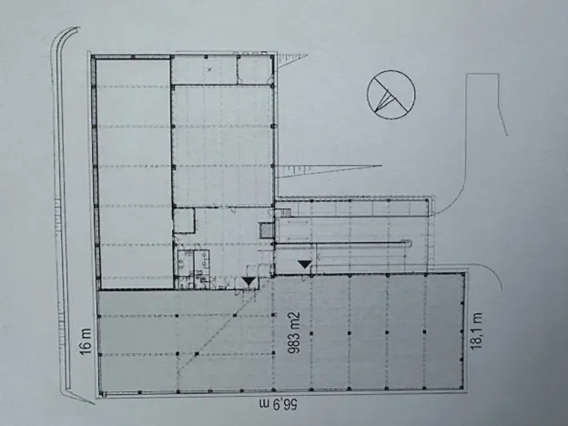
Se souhlasem majitele nabízíme k pronájmu polovinu halového objektu o celkové ploše 983m2 v lokalitě Troubsko, ul. Jihlavská cca 1km od západního okraje Brna.V současné době započala výstavba objektu, který bude dokončen 6/2025.Hala bude mít obdelníkový tvar o š. 16.-18.m, délka 57m.Světlá výška 4,3 až 8,2m. Nosnost podlahy: 5000kg/m2.Hala bude plně zasíťována ( voda, plyn, kanalizace el. 400kW).Prostor bude vhodný pro vybudování sladů a lehké výroby.Hala bude zateplená, temperovaná s možností dobudování sociálního zázemí a dodatečného členění dispozice.Má samostatný vstup s přímým vjezdem do haly.Objekt bude mít zastřešené expediční místo s hydraulickým můstkem pro zavážení kamionem. Cena pronájmu 160,-/m2 a měsíc + ENERGIE. Vjez do areálu je z ulice Jihlavská. Výborná dostupnost na dálnici Praha-Brno. Více informací v RK.

Cena
160 Kč /za metr čtvereční / měsíc
Aktualizováno
13. 11. 2024
Adresa
Jihlavská, Brno
Stavba
Skeletová
Stav objektu
Novostavba
Užitná plocha
983 m2

Máte zájem o tuto nemovitost?

Tímto, v souladu s nařízením Evropského parlamentu a Rady (EU) 2016/679, v platném znění, prohlašuji, že mi je alespoň 16 let a uděluji tak svůj souhlas se zpracováním zadaných údajů (jméno, telefon, e-mail, ip adresa) společnosti B3 Technology, s.r.o., IČ: 07330600, se sídlem Novostavby 126/23, 435 11 Lom (správce dat), za účelem předání dotazu z tohoto formuláře Vámi vybranému inzerentovi a zpětného kontaktování mé osoby. Osobní údaje bude správce zpracovávat manuálně i automaticky přímo prostřednictvím svých zaměstnanců. Informace předané tímto formulářem budou uloženy v databázi správce maximálně po dobu 10 let. Odvolání souhlasu s uložením a zpracováním poskytnutých dat lze e-mailem na info@realitymat.cz. V případě podezření na neoprávněné použití Vámi poskytnutých údajů máte právo předat podnět k šetření Úřadu pro ochranu osobních údajů. Více informací
Chystáte se prodat nemovitost?
Pomůžeme Vám!

Kontakt

René Ličartovský

René Ličartovský

Přihlášení k odběru

Nenechte si ujít nejnovější nabídky pronájmu výrobních prostor v Brně.

Podobné nabídky