Pronájem kanceláře, Praha - Krč, Olbrachtova, 311 m2 (ID: 1509399)
Olbrachtova, Praha 4
(+ služby 90,-Kč/m2/měs. + DPH)
Popis
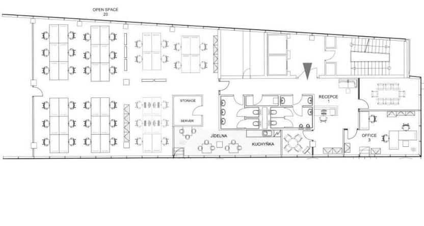
Neplatíte provizi ! Nabízíme k pronájmu kanceláře 311m2 v 7. patře budovy The Greenline v ul. Jihlavská, Praha 4.
The Greenline je nadstandardně řešená administrativní budova v byznysovém srdci Prahy 4. Snadný a rychlý přístup do centra města. Otevřené půdorysy budovy se přizpůsobí dispozičním požadavkům klienta. K dispozici je celkem 8 moderních výtahů. Sdílené zasedací místnosti, recepce s ostrahou 24/7. Pouze 2min. chůze od stanice metra (Kačerov)
Zdarma pro Vás připravíme nabídku kanceláří z více jak 300 budov po celé Praze.
Máte zájem o tuto nemovitost?

Pernerova 697/35, Praha, Karlín
Pomůžeme Vám!
Pomůžeme Vám!
Kontakt

Martin Vacek
Přihlášení k odběru
Nenechte si ujít nejnovější nabídky pronájmu kanceláří v Praze 4.