Pronájem kanceláře, Ústí nad Labem - Ústí nad Labem-centrum, Masarykova, 155 m2 (ID: 1496759)

Masarykova, Ústí nad Labem, okres ústecký kraj, Ústí nad Labem-město


Cena na vyžádání /za metr čtvereční / měsíc
Získejte výhodnou HYPOTÉKU
Regionální dodavatelé v Ústí nad Labem

Okna a dveře

Rekonstrukce

Zámečnické práce

Popis

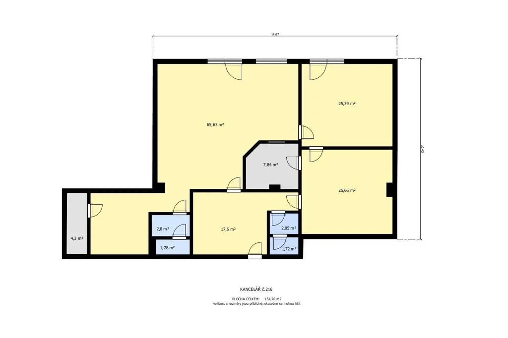
Nabízíme k pronájmu uzavřený komplex klimatizovaných kanceláří (3 různě velké světlé místností s vl. sociálním zařízením, kuchyňkou, skladem a se zázemím) v nové moderní budově ABC Archan Business Centrum v centru Ústí nad Labem vedle divadla. Budova nabízí vysoký uživatelský standard včetně recepce v přízemí budovy. Nabízený segment se nachází v 2.patře budovy se 2 výtahy. V suterénu budovy se nacházejí garáže se stáním pro celkem 25 aut, jedno stání 2 800, Kč/měs. Volná místa ještě k dispozici. Dále možnost vyhrazených parkovacích míst na přilehlých venkovních parkovištích. Služby 125 Kč/m2/měs, nájem je sjednáván individuálně. Kauce dle dohody. Bližší informace Vám rádi podáme a umožníme osobní prohlídku nabízených prostor.

Cena
Cena na vyžádání
Aktualizováno
25. 10. 2025
Adresa
Masarykova, Ústí nad Labem, okres ústecký kraj, Ústí nad Labem-město
ID
008N053854
Stavba
Smíšená
Stav objektu
Novostavba
Patro
3. z 7
Typ objektu
Patrový
Vlastnictví
Osobní
Užitná plocha
155 m2
Plocha pozemku
1 m2
Plocha nebytových prostor
155 m2
Třída energetické náročnosti
B - Velmi úsporná
Topení
Ústřední dálkové
Doprava
Vlak, Dálnice, Silnice, MHD
Garáž
Výtah

Máte zájem o tuto nemovitost?

Tímto, v souladu s nařízením Evropského parlamentu a Rady (EU) 2016/679, v platném znění, prohlašuji, že mi je alespoň 16 let a uděluji tak svůj souhlas se zpracováním zadaných údajů (jméno, telefon, e-mail, ip adresa) společnosti B3 Technology, s.r.o., IČ: 07330600, se sídlem Novostavby 126/23, 435 11 Lom (správce dat), za účelem předání dotazu z tohoto formuláře Vámi vybranému inzerentovi a zpětného kontaktování mé osoby. Osobní údaje bude správce zpracovávat manuálně i automaticky přímo prostřednictvím svých zaměstnanců. Informace předané tímto formulářem budou uloženy v databázi správce maximálně po dobu 10 let. Odvolání souhlasu s uložením a zpracováním poskytnutých dat lze e-mailem na info@realitymat.cz. V případě podezření na neoprávněné použití Vámi poskytnutých údajů máte právo předat podnět k šetření Úřadu pro ochranu osobních údajů. Více informací
Chystáte se prodat nemovitost?
Pomůžeme Vám!

Kontakt

Jolana Šulcová

Jolana Šulcová

Přihlášení k odběru

Nenechte si ujít nejnovější nabídky pronájmu kanceláří v Ústí nad Labem.

Podobné nabídky