Pronájem kanceláře, Pardubice, 54 m2 (ID: 1465141)

Pardubice, Semtín


6 100 Kč /za měsíc
Získejte výhodnou HYPOTÉKU
Regionální dodavatelé v Pardubicích

Pojištění a finance

Popis

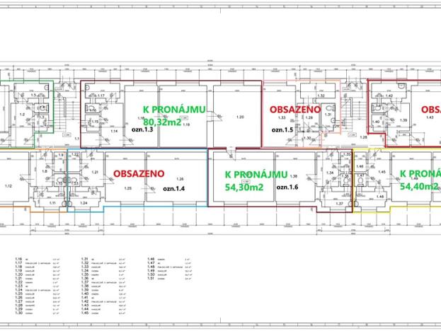
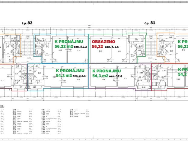
Nabízíme prostory v administrativní budově čísla popisného 82 a 81 v k.ú. Semtín, obec Pardubice umístěné na pozemku označeného jako stavební parcela st. 311, poziční číslo P9 dle podnikové systematiky společnosti. Budova se nachází cca 6 km od centra Pardubic naproti hlavní vrátnici Synthesia na levé straně silnice směr Lázně Bohdanče.
Jedná se o budovu o 3 nadzemních podlažích (zvýšené přízemí) a jednom podlaží podzemním (většina budovy je podsklepena). Podlaha v nadzemních podlažích je betonová s keramickou dlažbou nebo krytá PVC. Vnitřní stěny místností jsou omítnuty a obíleny, v hygienických místnostech je proveden obklad stěn do výšky cca 1350 mm, na podlaze je položena dlažba. Okna jsou plastová, vstupní dveře dřevo. Budova je připojena na systém dálkového vytápění, kanalizaci, vodovod, elektřinu. Budova prošla v roce 2021 rozsáhlou rekonstrukcí- nová střecha, fasáda, výměna oken a dveří, parkoviště před budovou.
Kanceláře mají parametry bytu tzn. , že mají sociální zázemí a kuchyňku, což zajišťuje maximální soukromí a pohodlí. Každé prostory mají samostatný elektroměr, teplo je rozpočítáváno dle velikosti pronajatých prostor a je zajištěno parovodem. Před objektem se nachází parkovací stání (není v ceně nájmu a musí se hradit zvlášť). Za příplatek lze zajistit kontrolu ostrahy, telefonní linku a jiné služby. Kanceláře nejsou zařízeny, nutno si obstarat veškeré vybavení a nábytek.
Jedná o klidnou lokalitu v těsné blízkosti města Pardubic se zastávkou MHD 100m od objektu směr PCE a Lázně Bohdaneč. Ideální jako sídlo firmy. Nelze využít jako byt či podobné účely.
K dispozici jsou prostory od 36m2 do 110m2. Cena 1350 Kč/m2/rok (112 Kč/m2/měsíc)

K pronajmutí ihned. Pronájem jen pro podnikající osoby s IČ, preferujeme s.r.o. Kauce ve výši 2 nájmů

Cena
6 100 Kč /za měsíc
Aktualizováno
18. 10. 2025
Adresa
Pardubice, Semtín
Stavba
Cihlová
Stav objektu
Dobrý
Vybaveno
Ne
Typ objektu
Patrový
Užitná plocha
54 m2
Třída energetické náročnosti
F - Velmi nehospodárná

Máte zájem o tuto nemovitost?

Tímto, v souladu s nařízením Evropského parlamentu a Rady (EU) 2016/679, v platném znění, prohlašuji, že mi je alespoň 16 let a uděluji tak svůj souhlas se zpracováním zadaných údajů (jméno, telefon, e-mail, ip adresa) společnosti B3 Technology, s.r.o., IČ: 07330600, se sídlem Novostavby 126/23, 435 11 Lom (správce dat), za účelem předání dotazu z tohoto formuláře Vámi vybranému inzerentovi a zpětného kontaktování mé osoby. Osobní údaje bude správce zpracovávat manuálně i automaticky přímo prostřednictvím svých zaměstnanců. Informace předané tímto formulářem budou uloženy v databázi správce maximálně po dobu 10 let. Odvolání souhlasu s uložením a zpracováním poskytnutých dat lze e-mailem na info@realitymat.cz. V případě podezření na neoprávněné použití Vámi poskytnutých údajů máte právo předat podnět k šetření Úřadu pro ochranu osobních údajů. Více informací
Chystáte se prodat nemovitost?
Pomůžeme Vám!
Theleadway banner

Kontakt

Radim Chyba

Radim Chyba

Přihlášení k odběru

Nenechte si ujít nejnovější nabídky pronájmu kanceláří v Pardubicích.

Podobné nabídky