Pronájem výrobních prostor, Fulnek, 1. máje, 150 m2
1. máje, Fulnek
(v textu)
Popis
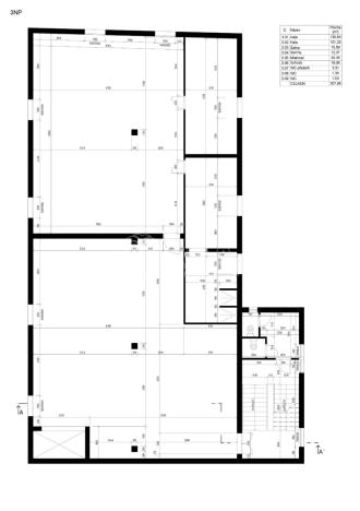
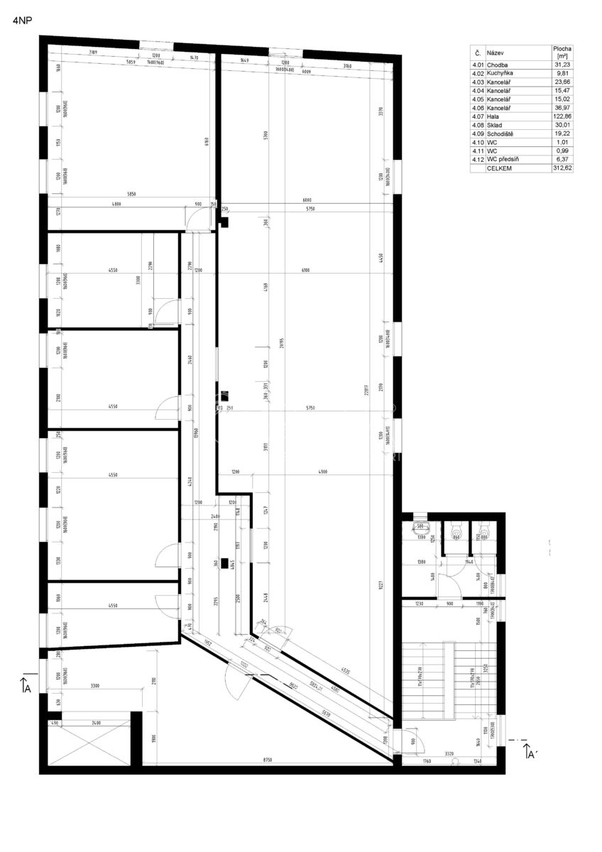
Nabízíme k pronájmu komerční prostory v průmyslovém areálu ve Fulneku na ulici 1. máje 61. První tři patra jsou ideální pro různé podnikatelské činnosti včetně výroby, skladování a k různým montážním pracím. Poslední patro je využíváno ke kancelářským účelům. Čtyřpatrová budova dříve sloužila k výrobě prošívaných textilií a přikrývek a nyní je připravena posloužit vašim podnikatelským potřebám. Možnost pronájmu části objektu o výměře od 150 m2.
V budově je k dispozici zázemí pro zaměstnance - šatny, sprchy a toalety.
Nákladní výtah má nosnost 1.000 kg. Prostory lze upravit na míru dle Vašich požadavků. Vjezd do areálu je možný i pro kamióny. Možnost parkování v objektu, případně pronájem venkovních ploch.
Výhodou areálu je soustředění více firem v místě s možností kooperace výroby.
Výhody areálu je výborná dopravní dostupnost – exit 330 dálnice D1 ve vzdálenosti 7 km, silnice spojující Nový Jičín a Opavu je ve vzdálenosti 3 km, 200 metrů je vzdálena silnice na Odry.
Nájemné je stanoveno od  60 Kč/m2 za měsíc bez DPH za výrobní a skladovací prostory. Cena kanceláří začíná na 120 Kč/m2 za měsíc bez DPH. K ceně nájmu je nutno připočítat zálohy na energie a služby. Vratná kauce ve výši 2 měsíčních nájmů.
PENB nebyl dodán, proto je v souladu se zákonem uváděná energetická náročnost budovy třída G.
Nevyhovuje tento prostor Vašim potřebám? Kontaktujte nás s vaší poptávkou. Pokusíme se Vám v rámci areálu nebo nabídky od klientů nabídnout jiné prostory vč. možnosti jejich úpravy na míru …
Pro více informací a případnou prohlídku neváhejte kontaktovat makléře Jirku Váhalu.
Máte zájem o tuto nemovitost?
 
                                Šafaříkova 201/17, Praha
Pomůžeme Vám!
Pomůžeme Vám!
Kontakt
 
                        Jiří Váhala
Přihlášení k odběru
Nenechte si ujít nejnovější nabídky pronájmu výrobních prostor v Fulneku.
 
                                                                                     
                                                                                     
                                                                                     
                                                                                     
                                                                                     
                                                                                     
                                                                                     
                                                                                     
                                                                                     
                                                                                     
                                                                                     
                                                                                     
                                                                                     
                                                                                     
                                                                                     
                                                                                     
                                                                                     
                                                                                     
                                                                                     
                                                                                     
                                                                                     
                                                                                     
                                                                                     
                                                                                     
                                                                                     
                                                                                     
                                                                                     
                                                                                     
                                                                                    