Pronájem kanceláře, Kopřivnice, Československé armády, 168 m2
Československé armády, Kopřivnice
Popis
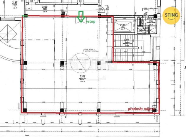
Nabízíme k pronájmu jedinečné kancelářské prostory v Kopřivnici na ulici Československé armády v budově, ve které sídlí Komerční banka. Jedná se o open space kanceláře, které se nachází v 2NP budovy. V patře je sociální zázemí včetně kuchyňky. Vedle objektu se nachází veřejné neplacené parkoviště Celý prostor je kompletně prosklený., Ideální dopravní dostupnost. Výměra činí 168 m2. Možnost odkoupení nábytku dle domluvy. Nájem ve výši 25.000 ,- kč bez DPH. Vratná kauce ve výší dvou nájmu. NEPLATÍ SE PROVIZE RK. V případě vzniklých dotazů mě neváhejte kontaktovat.
Máte zájem o tuto nemovitost?
Pomůžeme Vám!
Kontakt
 
                        Daniel Bučko
Přihlášení k odběru
Nenechte si ujít nejnovější nabídky pronájmu kanceláří v Kopřivnici.
 
                                                                                     
                                                                                     
                                                                                     
                                                                                     
                                                                                     
                                                                                     
                                                                                     
                                                                                     
                                 
         
         
        