Prodej výrobních prostor, Sušice - Sušice III, 327 m2
Sušice III
(Rádí Vám poskytneme na vyžádání)
Popis
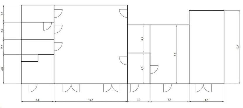
Nabízíme prodej - auto/dílny, garáže, skladů nebo výrobní haly v Sušici v okrajové části města bývalého vojenského areálu. Jedná se o přízemní objekt z cihelného zdiva rozčleněný na dvě garáže s montážní jámou, (52.3m2, 53.5m2), dílnu (126.7m2), 4x sklad /(11.5m2, 21m2, 12.1m2, 9.8m2), kancelář (15.3m2) a soc. zařízení (24.1m2) s celkovou podlahovou plochou 326.8m2. Objekt se prodává včetně vybavení, dvěma dvousloupovými aoutozvedáky, rozvodu vzduchu včetně kompresoru, regály atd. Budova je vystavěna na konci řadové zástavby, krytinou tradiční AZC z vlnité šablony, okny dřevěnými s kovovými a prosklenými dveřmi, podlahy betonové. V jedné dílně je zhotoven protipožární strop a zhruba nad ¾ budovy se nachází pochozí půdní prostor. V budově je zavedena el., 230/400V. Vytápění dílny zajišťují lokální kamna na olej. Příjezd k pozemku je po zpevněné komunikaci v majetku města. Ve městě najdete poměrně kvalitní občanskou vybavenost. Z dopravy je velmi dobrá dostupnost do Plzně 70 km, Klatov 30 km, Strakonic 38 km a Německa 40 km. Budovu lze koupit i bez jedné garáže za sníženou cenu. Rádi Vám poskytneme více informací.
Máte zájem o tuto nemovitost?
 
                                Klostermannova 96, Sušice
Pomůžeme Vám!
Pomůžeme Vám!
Kontakt
 
                        Jaroslav Staněk
Přihlášení k odběru
Nenechte si ujít nejnovější nabídky prodeje výrobních prostor v Sušici (okr. Klatovy).
Podobné nabídky
 
        Prodej výrobních prostor, Klatovy - Klatovy II, K Letišti, 9135 m2
Cena na vyžádání
 
        Prodej obchodního prostoru, Sušice, náměstí Svobody, 1250 m2
Cena na vyžádání
 
                                                                                     
                                                                                     
                                                                                     
                                                                                     
                                                                                     
                                                                                     
                                                                                     
                                                                                     
                                                                                     
                                                                                     
                                                                                     
                                                                                     
                                                                                     
                                                                                     
                                                                                     
                                                                                     
                                                                                     
                                                                                     
                                             
                                            