Pronájem bytu 3+1, Praha - Josefov, Bílkova, 120 m2

Bílkova, Praha 1, Josefov


39 000 Kč /za měsíc
Získejte výhodnou HYPOTÉKU

(+ domovní služby 1os./ 900,- Kč+ el. a plyn převod na nájemce)


Regionální dodavatelé v Praze 1

Stěhovací služby

Výkup a prodej starého nábytku

Popis

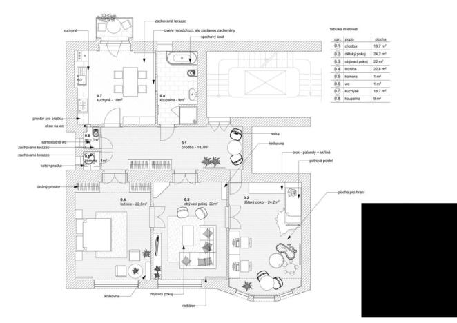
K dlouhodobému pronájmu nabízíme prostorný, hezký a zrekonstruovaný byt o dispozici 3+1, 120m2, který se nachází ve 2. patře cihlového domu s výtahem v samém centru Prahy 1, nedaleko Staroměstského náměstí v ulici Bílkova. Velkou výhodou bytu jsou tři zcela samostatné neprůchozí pokoje, samostatná kuchyň s balkonem do dvora, koupelna s vanou i sprchovým koutem s podlahovým vytápěním, samostatné WC a komora přímo v bytě. Dispoziční řešení bytu včetně velikosti jednotlivých místností naleznete ve fotografiích této nabídky. Byt je pronajímán bez nábytku, zůstává pouze nová kuchyňská linka s vestavěnou el. troubou a varnou deskou, myčka nádobí, lednice s mrazákem a mikrovlnná trouba. Vytápění a ohřev vody zajišťuje kondenzační plynový kotel se zásobníkem teplé vody. Byt je vzhledem ke své velikosti vhodný pro 4-5os., nevadí pes, nebo kočka. Nastěhování je možné ihned. Pouze dlouhodobý pronájem, v domě bydlí dlouhodobě stabilní nájemci (žádné krátkodobé nájmy typu Airbnb). Nájemné 39.000,-Kč + 900,-Kč /os. domovní služby + el. a plyn převod na nájemce (cca 5-6tis.). Celkem při užívání 3 osob cca 46.700,-Kč se vším.

Cena
39 000 Kč /za měsíc
Poznámka k ceně
+ domovní služby 1os./ 900,- Kč+ el. a plyn převod na nájemce
Aktualizováno
11. 4. 2024
Adresa
Bílkova, Praha 1, Josefov
ID
N00099
Stavba
Cihlová
Stav objektu
Velmi dobrý
Patro
2. z 5
Vybaveno
Ne
Lokalita objektu
Centrum obce
Vlastnictví
Osobní
Užitná plocha
120 m2
Podlahová plocha
120 m2
Třída energetické náročnosti
G - Mimořádně nehospodárná
Elektřina
230V
Plyn
Plynovod
Odpad
Veřejná kanalizace
Topení
Ústřední plynové
Telekomunikace
Telefon, Internet, Kabelová televize, Kabelové rozvody, Ostatní
Doprava
Silnice, MHD, Autobus
Voda
Vodovod
Balkon
Výtah
Bezbarierový přístup

Máte zájem o tuto nemovitost?

Tímto, v souladu s nařízením Evropského parlamentu a Rady (EU) 2016/679, v platném znění, prohlašuji, že mi je alespoň 16 let a uděluji tak svůj souhlas se zpracováním zadaných údajů (jméno, telefon, e-mail, ip adresa) společnosti B3 Technology, s.r.o., IČ: 07330600, se sídlem Novostavby 126/23, 435 11 Lom (správce dat), za účelem předání dotazu z tohoto formuláře Vámi vybranému inzerentovi a zpětného kontaktování mé osoby. Osobní údaje bude správce zpracovávat manuálně i automaticky přímo prostřednictvím svých zaměstnanců. Informace předané tímto formulářem budou uloženy v databázi správce maximálně po dobu 10 let. Odvolání souhlasu s uložením a zpracováním poskytnutých dat lze e-mailem na info@realitymat.cz. V případě podezření na neoprávněné použití Vámi poskytnutých údajů máte právo předat podnět k šetření Úřadu pro ochranu osobních údajů. Více informací
Chystáte se prodat nemovitost?
Pomůžeme Vám!

Kontakt

Jitka Krajňáková

Jitka Krajňáková

Přihlášení k odběru

Nenechte si ujít nejnovější nabídky pronájmu bytů 3+1 v Praze 1.

Podobné nabídky