Pronájem obchodního prostoru, Klatovy, Jateční, 125 m2 (ID: 1275866)

Jateční, Klatovy II


110 Kč /za metr čtvereční / měsíc
Získejte výhodnou HYPOTÉKU

(+ provize makléři)


Regionální dodavatelé v Klatovech

Stěhovací služby

Pojištění a finance

Popis

Hledáte komerční, obchodní, výrobní či skladové prostory. Tím pádem areál spol. Jitona splňuje všechny předpoklady včetně výborné dopravní dostupnost a bezplatné parkování před budovou.
Při dlouhodobé spolupráci možnost úprav prostoru, podle Vašich představ.
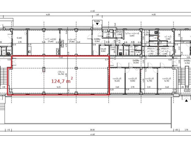
Velikost prostoru nabízeného k pronájmu je 125, m2, o rozměrech 18.2 m x 6,9 m.
Je možné využít samostatný vchod nebo přístupem přes rampu.
Záloha na energie je 110,-Kč/m2 ( paušál na el. 30Kč/m2 + 80Kč/m2 topení, vodu a užívání spol. prostorů + DPH)
Na patře se nachází recepce i veškeré sociální vybavenost včetně kuchyňky.
Pro další upřesnění technických parametrů mě neváhejte kontaktovat

Cena
110 Kč /za metr čtvereční / měsíc
Poznámka k ceně
+ provize makléři
Náklady na bydlení
Záloha na topení, el. energii a vodu 110 Kč/m2+ DPH
Aktualizováno
10. 4. 2025
Adresa
Jateční, Klatovy II
Stavba
Panelová
Stav objektu
Dobrý
Patro
1.
Typ objektu
Patrový
Lokalita objektu
Okraj obce
Užitná plocha
125 m2
Podlahová plocha
125 m2
Třída energetické náročnosti
F - Velmi nehospodárná
Ukazatel energetické náročnosti
211 kWh/m2 za rok
Výtah
Bezbarierový přístup
Parkování

Máte zájem o tuto nemovitost?

Tímto, v souladu s nařízením Evropského parlamentu a Rady (EU) 2016/679, v platném znění, prohlašuji, že mi je alespoň 16 let a uděluji tak svůj souhlas se zpracováním zadaných údajů (jméno, telefon, e-mail, ip adresa) společnosti B3 Technology, s.r.o., IČ: 07330600, se sídlem Novostavby 126/23, 435 11 Lom (správce dat), za účelem předání dotazu z tohoto formuláře Vámi vybranému inzerentovi a zpětného kontaktování mé osoby. Osobní údaje bude správce zpracovávat manuálně i automaticky přímo prostřednictvím svých zaměstnanců. Informace předané tímto formulářem budou uloženy v databázi správce maximálně po dobu 10 let. Odvolání souhlasu s uložením a zpracováním poskytnutých dat lze e-mailem na info@realitymat.cz. V případě podezření na neoprávněné použití Vámi poskytnutých údajů máte právo předat podnět k šetření Úřadu pro ochranu osobních údajů. Více informací
Chystáte se prodat nemovitost?
Pomůžeme Vám!
Theleadway banner

Kontakt

Miloš Toman

Miloš Toman

Přihlášení k odběru

Nenechte si ujít nejnovější nabídky pronájmu obchodních prostor v Klatovech.

Podobné nabídky