Prodej bytu 4+kk, Praha - Košíře, Na pomezí, 153 m2

Na pomezí, Praha 5, Košíře


27 000 000 Kč /za nemovitost
HYPOTÉKA od 120 674 Kč /měs.

(včetně právního servisu a provize RK)


Regionální dodavatelé v Praze 5

Stěhovací služby

Výkup a prodej starého nábytku

Popis

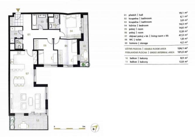
Nízkoenergetický, vysoce nadstandardní byt 4+kk, o celkové ploše 153,2 m2, se dvěma terasami, umístěný ve 2. podlaží prémiové novostavby "top´rezidence Pomezí", postavené roku 2020, přímo vedle lesoparku Cibulka a Vidoule, na dosah centra města. Umístění na vrcholu kopce nabízí neopakovatelné výhledy na panorama Prahy.

Dispozici bytu (131,5 m2) tvoří předsíň, 3 ložnice, obývací pokoj s jídelním a kuchyňským koutem, koupelna s vanou, en-suite koupelna se sprchovým koutem a wc příslušející k ložnici, další samostatné wc a technická místnost. Byt má 2 terasy - se vstupem z obývacího pokoje (12,8 m2) a vstupem z ložnice (8,9 m2). Cena zahrnuje také prostorný sklep a 2 parkovací stání v suterénu domu.

Moderní technologie a vysoké standardy bytu podtrhují jeho špičkovou kvalitu - decentrální větrání s rekuperací tepla i vlhkosti a funkcí dochlazování, inteligentní ovládání domácnosti, dřevěné masivní podlahy s integrovaným fan-coil topením, velkoformátová dřevěná okna s izolačním trojsklem, venkovní elektricky ovládané hliníkové žaluzie, podlahové topení v koupelnách, značková sanita a obklady, protipožární čidla, světelný senzor pohybu. K dispozici je optický internet s rozvody ve všech pokojích.

Za zmínku stojí designové osvětlení všech místností a nábytek na míru v provedení dub - lak v pudrovém odstínu, vyrobený dle návrhu interiérové designérky. V bytě je velké množství důmyslně řešených úložných prostor, s osvětlením uvnitř i vně. Kuchyňská linka je vybavena spotřebiči BOSCH nejvyšší třídy, indukční varná deska má integrované odsávání. Osvěžující komfort nabízí americká lednice s ledovačem nebo vestavěná vinotéka. Pracovní deska kuchyňské linky je z umělého kamene Corian.

Velmi žádaná prémiová lokalita s kompletní občanskou vybaveností. Nedaleko se nachází škola, školka, potraviny, restaurace, sportoviště, pošta apod. Za zábavou a nákupy lze dojet do nedalekého obchodního centra Nový Smíchov, nebo Galerie Butovice. Bezprostřední blízkost rozlehlého lesoparku zaručuje rozličné možnosti relaxace a sportovního vyžití, krátkou procházkou lze dojít na kamennou romantickou rozhlednu Cibulka a další parková zastavení. Vynikající je dostupnost do centra Prahy, autem i MHD. Stanice metra Anděl 10 min autobusem. 800 metrů od domu je vlaková zastávka s přímým spojením na hlavní nádraží.

Podlahová plocha 131,5 m2, terasa 12,8 m2, terasa 8,9 m2 + sklep 9 m2, dvě garážová parkovací stání.

PENB-B

ID nemovitosti MDO0562-0001.

Cena
27 000 000 Kč /za nemovitost Spočítat hypotéku
Poznámka k ceně
včetně právního servisu a provize RK
Aktualizováno
17. 7. 2025
Adresa
Na pomezí, Praha 5, Košíře
ID
MDO0562-0001
Stavba
Cihlová
Stav objektu
Novostavba
Patro
2. z 5
Vybaveno
Ano
Typ objektu
Patrový
Vlastnictví
Osobní
Užitná plocha
153 m2
Podlahová plocha
153 m2
Plocha pozemku
153 m2
Třída energetické náročnosti
B - Velmi úsporná
Topení
Ústřední plynové
Garáž
Sklep
Terasa
Výtah
Bezbarierový přístup

Máte zájem o tuto nemovitost?

Tímto, v souladu s nařízením Evropského parlamentu a Rady (EU) 2016/679, v platném znění, prohlašuji, že mi je alespoň 16 let a uděluji tak svůj souhlas se zpracováním zadaných údajů (jméno, telefon, e-mail, ip adresa) společnosti B3 Technology, s.r.o., IČ: 07330600, se sídlem Novostavby 126/23, 435 11 Lom (správce dat), za účelem předání dotazu z tohoto formuláře Vámi vybranému inzerentovi a zpětného kontaktování mé osoby. Osobní údaje bude správce zpracovávat manuálně i automaticky přímo prostřednictvím svých zaměstnanců. Informace předané tímto formulářem budou uloženy v databázi správce maximálně po dobu 10 let. Odvolání souhlasu s uložením a zpracováním poskytnutých dat lze e-mailem na info@realitymat.cz. V případě podezření na neoprávněné použití Vámi poskytnutých údajů máte právo předat podnět k šetření Úřadu pro ochranu osobních údajů. Více informací
Chystáte se prodat nemovitost?
Pomůžeme Vám!

Kontakt

Faraon Reality s.r.o.

Faraon Reality s.r.o.

Přihlášení k odběru

Nenechte si ujít nejnovější nabídky prodeje bytů 4+kk v Praze 5.

Podobné nabídky