Prodej domu na klíč, Slavičky - Pozďátky, 167 m2

Slavičky, Pozďátky


11 000 000 Kč /za nemovitost
HYPOTÉKA od 49 163 Kč /měs.

(včetně DPH, včetně poplatků, včetně provize, včetně právního servisu)


Regionální dodavatelé v Slavičkách

Popis

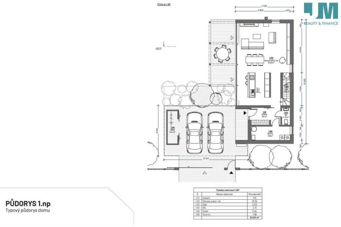
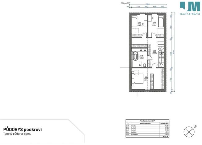
Naše společnost Vám zprostředkuje prodej stavby na klíč na pozemku 950 m2 v obci Pozďátky vzdálené 7 km od města Třebíč. Cena zahrnuje pozemek, stavbu domu , terénní úpravy, střecha vazníková, příjezdová cesta - dlažba, přístřešek pro stání aut. Součástí prodeje je i tepelné čerpadlo, vyhřívané podlahy, omítky, základní keramika do koupelny a toalety.
Do ceny není zahrnuto: přední plot , zabezpečení , bazén , úprava zahrady , a další nadstandardní služby.
Možno vstoupit do projektu a upravit dle požadavku kupujícího.
K dispozici jsou pozemky Pozďátky: 999/1, 999/2, 999/3.
V případě zájmu o více informací mě neváhejte kontaktovat.

Cena
11 000 000 Kč /za nemovitost Spočítat hypotéku
Poznámka k ceně
včetně DPH, včetně poplatků, včetně provize, včetně právního servisu
Aktualizováno
20. 1. 2026
Adresa
Slavičky, Pozďátky
ID
RD3
Stavba
Cihlová
Stav objektu
Novostavba
Vybaveno
Částečně
Typ objektu
Patrový
Druh objektu
Samostatný
Lokalita objektu
Klidná část obce
Užitná plocha
167 m2
Plocha pozemku
950 m2
Třída energetické náročnosti
G - Mimořádně nehospodárná
Elektřina
230V, 400V
Topení
Lokální tuhá paliva, Lokální elektrické
Doprava
Silnice, Autobus
Voda
Vodovod

Máte zájem o tuto nemovitost?

Tímto, v souladu s nařízením Evropského parlamentu a Rady (EU) 2016/679, v platném znění, prohlašuji, že mi je alespoň 16 let a uděluji tak svůj souhlas se zpracováním zadaných údajů (jméno, telefon, e-mail, ip adresa) společnosti B3 Technology, s.r.o., IČ: 07330600, se sídlem Novostavby 126/23, 435 11 Lom (správce dat), za účelem předání dotazu z tohoto formuláře Vámi vybranému inzerentovi a zpětného kontaktování mé osoby. Osobní údaje bude správce zpracovávat manuálně i automaticky přímo prostřednictvím svých zaměstnanců. Informace předané tímto formulářem budou uloženy v databázi správce maximálně po dobu 10 let. Odvolání souhlasu s uložením a zpracováním poskytnutých dat lze e-mailem na info@realitymat.cz. V případě podezření na neoprávněné použití Vámi poskytnutých údajů máte právo předat podnět k šetření Úřadu pro ochranu osobních údajů. Více informací
Chystáte se prodat nemovitost?
Pomůžeme Vám!

Kontakt

Josef Mejzlík

Josef Mejzlík

Přihlášení k odběru

Nenechte si ujít nejnovější nabídky prodeje domů na klíč v Slavičkách.

Podobné nabídky